$6,950,000
For Sale
Delisted 9/10/2019
2,651 ft²
$2,621 per ft²
6 rooms
3 beds
2 baths
Condo
- West Village
Seller's agent
This home has been saved by 21 users.
Listing by Christie's International Real Estate Group, LLC, Real Estate Principal Office, 1 Rockefeller Plaza, New York, NY 10020 | Brokerage Listing ID: 1406264
Common charges
$3,746/mo
Estimated payment
$43,249/mo
Legal disclaimerAll calculations are estimates provided by StreetEasy for informational purposes only. Actual amounts or financing terms may vary. Please contact your mortgage provider for specifics.Taxes
$4,247/mo
Tax abatement
No info
About
Seller’s agent
description
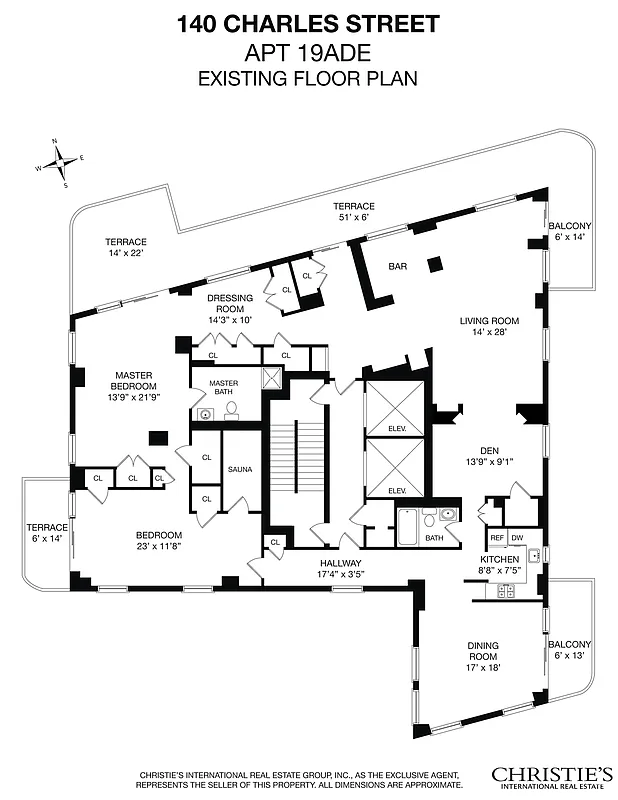
Treasure in the West Village!
Welcome to the 19th Floor at 140 Charles Street! This expansive full-floor condominium with keyed elevator access has multiple outdoor spaces, including a wraparound terrace, two master-size bedrooms and potential for a third bedroom, two full bathrooms, a sauna, a steam room, a full-size stacked washer and drier, a full dining room, and panoramic views all the way to the Statue of Liberty, the Hudson River, the Empire State Building, and West Village.
Policies
Pets allowed
Cats and dogs allowed
Home features
Dishwasher
Private outdoor space
Balcony, Terrace
Washer/dryer
Building amenities
Services and facilities
Bike room
Concierge
Doorman
Full-time
Elevator
Live-in super
Parking
Garage
Wellness and recreation
No info on wellness and recreation
Shared outdoor space
Roof deck
About the building
Memphis Downtown
140 Charles Street, New York, NY 10014
73 units
21 stories
1987 built
For sale
0 available units for saleFor rent
1 available units for rentDocuments and permits
View documents and permitsProperty history
- Price Change: No changes
- Days on market: 104 daysThis is the number of days the listing has been on StreetEasy.
| Date | Price | Event |
|---|---|---|
9/30/2019 | $6,950,000 | Delisted by Christie's International Real Estate Group, LLC |
9/10/2019 | $6,950,000 | No longer available |
5/29/2019 | $6,950,000 | Listed by Christie's International Real Estate Group, LLC |
1/14/2019 | $6,679,000 | |
12/31/2018 | $6,679,000 |
Sign in to take a closer look at how this home compares to similar homes.
Explore West Village
Transit
| Location | Distance |
|---|---|
PATHat Christopher Street Station | under 500 feet |
1at Christopher St–Sheridan Sq | 0.26 miles |
1at Houston St | 0.38 miles |
ABCDEFMat West 4th St | 0.39 miles |
FLM123at 14th St | 0.45 miles |
About West Village
Rental prices shown are base rent before any fees. Visit listings for cost and fees breakdown.
SalesMedian asking price
3 beds
$7.2M
RentalsMedian asking base rent
3 beds
$8,652
Picture a romantic comedy set in New York City: The heroine invariably lives in a cozy walk-up on a cobblestone street in a neighborhood with cute boutiques and trendy cafes on every corner. This movie is set in the West Village. In reality, the West Village is just as picturesque: The neighborhood is tucked between Greenwich Village and the Hudson River and is one of the quietest and most sophisticated pockets of Downtown Manhattan. Primarily residential, with a distinct lack of office buildings, the leafy, off-the-grid streets are peaceful during the day but get livelier at night. That's when well-heeled residents, fashionistas, and literati can all be found mingling over oysters at the area's many low-lit cocktail bars.
Learn more about West Village






































































































































