$5,300
For Rent
Base rent only. For total monthly price and additional fees, see .
Rented 8/18/2025
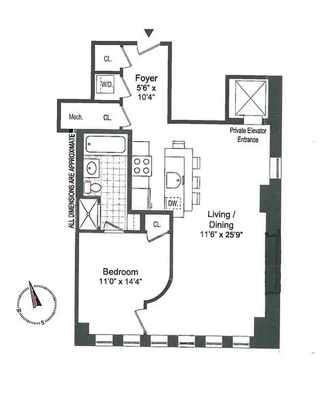
- ft²
3 rooms
1 bed
1 bath
Condo
- Midtown South
Under NYC law, you can't be charged a broker fee if you didn't hire a broker.
Listed By
This home has been saved by 53 users.
Listing by Compass, Corporate Broker, 68-70 The Crossing, Chappaqua, NY 10514
Unavailable
Rented on 8/18/2025
Days on market
56 days
Last price change
↓ $200 (-3.6%) on 7/14/25
About
Enter directly into this spacious and serene south-facing one-bedroom, one-bathroom home via a private elevator. Offering a true loft-like feel with soaring 12’6” ceilings, this residence includes central AC and heat, an in-unit washer and dryer, a chef’s kitchen, and newly installed city-quiet windows that create a peaceful, comfortable environment.
Policies
Pets allowed
Cats and dogs allowed
Home features
Central air
Dishwasher
Hardwood floors
View
City
Washer/dryer
Building amenities
Services and facilities
Concierge
Doorman
Full-time
Elevator
Laundry in building
Wellness and recreation
Gym
Shared outdoor space
Roof deck
About the building
Morgan Lofts
11 East 36th Street, New York, NY 10016
66 units
14 stories
1911 built
Property history
Prices shown are base rent only. For total monthly price and additional fees, see .
| Date | Base rent | Event |
|---|---|---|
8/18/2025 | $5,300 | Rented by Compass |
7/28/2025 | $5,300 | In contract |
7/14/2025 | $5,300 | Price decreased by 4% |
6/18/2025 | $5,500 | Price decreased by 10% |
6/11/2025 | $6,095 | Price increased by 15% |
Past listing photos
Sign in to take a closer look at how this home compares to similar homes.
Explore Midtown South
Transit
| Location | Distance |
|---|---|
6at 33rd St | 0.21 miles |
BDFMNQRWat 34th St–Herald Sq | 0.24 miles |
BDFM7at 5th Av | 0.27 miles |
S4567at Grand Central–42nd St | 0.28 miles |
BDFM7at 42nd St | 0.29 miles |
Similar homes
Prices shown are base rent only and don't include any fees. Visit each listing to see a complete cost breakdown.
Similar Homes looks at ad spend and other factors like location, price, and number of beds and baths.

































































































