View this home virtually
$5,600
For Rent
Base rent only. For total monthly price and additional fees, see .
695 ft²
$96 per ft²
3 rooms
1 bed
1 bath
Condo
- Two Bridges
Under NYC law, you can't be charged a broker fee if you didn't hire a broker.
Listed By
This home has been saved by 4 users.
Listing by EASYRENT REALTY LLC, Real Estate Principal Office, 405 Lexington Avenue, New York, NY 10174
Available
Available now
Days on market
21 days
Last price change
No changes
About
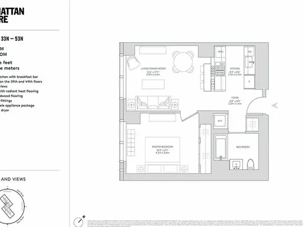
Residence 33J is a 695 sq ft one-bedroom, one-bathroom home with an open gourmet kitchen and breakfast bar. Facing northeast, it offers stunning views of Midtown and the East River. Designed by Meyer Davis Studio, the residence features premium Miele appliances, imported stone and custom finishes, wide stained oak floors, a master bath with marble tile, mosaic floors with radiant heat, custom wood cabinetry, Dornbracht fixtures, and an in-unit washer and dryer.
Policies
Pets allowed
Home features
Central air
Dishwasher
Hardwood floors
View
City, Water
Washer/dryer
Building amenities
Services and facilities
Bike room
Concierge
Doorman
Full-time
Elevator
Laundry in building
Live-in super
Package room
Parking
Garage
Storage space
Cold storage
Valet service
Wellness and recreation
Children's playroom
Gym
Hot tub
Media room
Swimming pool
Shared outdoor space
Deck
Garden
Patio
About the building
One Manhattan Square
252 South Street, New York, NY 10002
815 units
80 stories
2019 built
Property history
Prices shown are base rent only. For total monthly price and additional fees, see .
| Date | Base rent | Event |
|---|---|---|
2/26/2026 | $5,600 | Listed by EASYRENT REALTY LLC |
Sign in to take a closer look at how this home compares to similar homes.
Explore Two Bridges
Transit
| Location | Distance |
|---|---|
Fat East Broadway | 0.18 miles |
FJMZat Delancey St | 0.56 miles |
FJMZat Essex St | 0.58 miles |
BDat Grand St | 0.59 miles |
JZat Bowery | 0.71 miles |
Similar homes
Prices shown are base rent only and don't include any fees. Visit each listing to see a complete cost breakdown.
Similar Homes looks at ad spend and other factors like location, price, and number of beds and baths.








































































































































