View this home virtually
1,340 ft²
$1,675 per ft²
4 rooms
2 beds
2 baths
Co-op
- Lincoln Square
Resale
recorded sale
Sold on 8/29/2023
Verified by closing records
Last listed for $2,195,000
Seller's agents
This home has been saved by 49 users.
Listing by Brown Harris Stevens, Real Estate Principal Office, 445 Park Avenue, New York, NY 10022
Maintenance fees
$3,328/mo
Estimated payment
$14,088/mo
Legal disclaimerAll calculations are estimates provided by StreetEasy for informational purposes only. Actual amounts or financing terms may vary. Please contact your mortgage provider for specifics.Taxes
Included in maintenance fees
Tax abatement
No info
About
Seller’s agent
Buyer’s agent
description
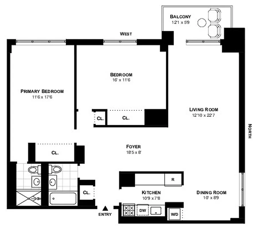
If breathtaking views, glorious light, tons of space, and a convenient location are what you value, then this is the place for you!
Welcome home to 38B at One Sherman Square, a 2-bedroom 2-bathroom piece of the Western Sky. Upon entry to 38B, a large foyer/gallery serves as the center of the home. Very spacious, there are many things this space could serve as - many have put a dining table here.
Policies
Co-purchase allowed
Gifts allowed
Pets allowed
Cats and dogs allowed
Pied-a-terre allowed
Smoke-free
Sublets allowed
Home features
Dishwasher
Hardwood floors
Private outdoor space
Balcony
View
City, Park, Skyline, Water
Washer/dryer
Building amenities
Services and facilities
Bike room
Concierge
Doorman
Full-time
Elevator
Laundry in building
Live-in super
Package room
Parking
Wellness and recreation
Gym
Shared outdoor space
Roof deck
About the building
One Sherman Square
201 West 70th Street, New York, NY 10023
387 units
41 stories
1971 built
For sale
5 available units for saleFor rent
0 available units for rentDocuments and permits
View documents and permitsProperty history
- Price Change: No changes
- Days on market: 50 daysThis is the number of days the listing has been on StreetEasy.
| Date | Price | Event |
|---|---|---|
8/29/2023 | $2,245,000 | Sold by Brown Harris Stevens |
6/16/2023 | $2,195,000 | In contract |
4/27/2023 | $2,195,000 | Listed by Brown Harris Stevens |
7/9/2019 | $1,137,500 | |
4/25/2017 | $2,275,000 |
Past listing photos
Sign in to take a closer look at how this home compares to similar homes.
Explore Lincoln Square
Transit
| Location | Distance |
|---|---|
123at 72nd St | under 500 feet |
1at 66th St–Lincoln Center | 0.28 miles |
BCat 72nd St | 0.36 miles |
1at 79th St | 0.43 miles |
BCat 81st St–Museum of Natural History | 0.53 miles |
About Lincoln Square
Rental prices shown are base rent before any fees. Visit listings for cost and fees breakdown.
SalesMedian asking price
2 beds
$2.2M
RentalsMedian asking base rent
2 beds
$8,775
Named after and defined by the Lincoln Center for the Performing Arts, Lincoln Square is home to the New York Philharmonic, the New York City Ballet and the Metropolitan Opera, among many other cultural institutions. The neighborhood blends the prewar architecture and and style of the Upper West Side with modern, tall residential buildings. Great subway access at Columbus Circle and proximity to Midtown make this neighborhood popular with those looking to be in the center of it all.
Learn more about Lincoln Square

































































































































