View this home virtually
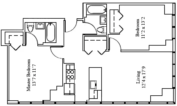
957 ft²
$1,253 per ft²
5 rooms
2 beds
2 baths
Condo
- Hell's Kitchen
Resale
recorded sale
Sold on 4/12/2024
Verified by closing records
Last listed for $1,175,000
Seller's agent
This home has been saved by 133 users.
Listing by Compass, Corporate Broker, 110 5th Avenue, New York, NY 10011
Common charges
$1,164/mo
Estimated payment
$8,795/mo
Legal disclaimerAll calculations are estimates provided by StreetEasy for informational purposes only. Actual amounts or financing terms may vary. Please contact your mortgage provider for specifics.Taxes
$1,893/mo
Tax abatement
No info
About
Seller’s agent
description
Experience the epitome of Manhattan living with this exquisite sun-soaked corner residence boasting 2 bedrooms and 2 bathrooms within the prestigious Orion building.
Ideally positioned in the heart of midtown Manhattan, this well-appointed corner unit offers captivating vistas of the city skyline, basking in southern and western sun exposure.
Policies
Pets allowed
Cats and dogs allowed
Smoke-free
Home features
Central air
Dishwasher
Hardwood floors
View
City, Skyline, Water
Building amenities
Services and facilities
Bike room
Concierge
Doorman
Full-time
Elevator
Laundry in building
Package room
Parking
Garage
Storage space
Cold storage
Wellness and recreation
Children's playroom
Gym
Media room
Swimming pool
Shared outdoor space
Deck
About the building
ORION Condominium
350 West 42nd Street, New York, NY 10036
551 units
60 stories
2007 built
For sale
23 available units for saleFor rent
8 available units for rentDocuments and permits
View documents and permitsProperty history
- Price Change: No changes
- Days on market: 72 daysThis is the number of days the listing has been on StreetEasy.
| Date | Price | Event |
|---|---|---|
4/12/2024 | $1,200,000 | Sold by Compass |
2/8/2024 | $1,175,000 | In contract |
11/28/2023 | $1,175,000 | Listed by Compass |
8/28/2023 | $1,175,000 | |
6/12/2023 | $1,175,000 | Price decreased by 15% |
Past listing photos
Sign in to take a closer look at how this home compares to similar homes.
Explore Hell's Kitchen
Transit
| Location | Distance |
|---|---|
ACENQRWS1237at Times Square–42nd St | 0.14 miles |
123ACEat 34th St–Penn Station | 0.34 miles |
CEat 50th St | 0.39 miles |
NRWat 49th St | 0.4 miles |
BDFM7at 42nd St | 0.45 miles |







































































































































































































































































































































































