$8,500
For Rent
Base rent only. For total monthly price and additional fees, see .
Delisted 10/23/2025
1,100 ft²
$92 per ft²
6 rooms
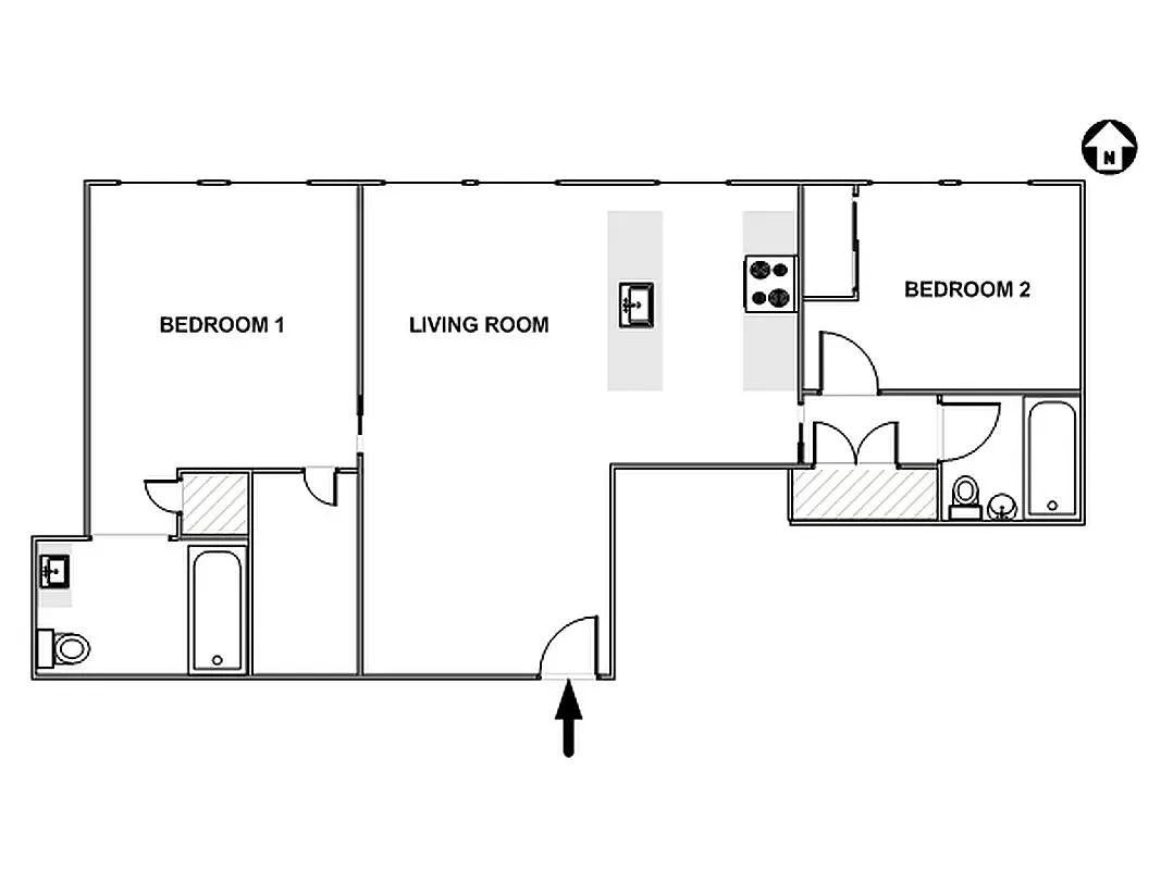
2 beds
2 baths
Condo
- Williamsburg
Under NYC law, you can't be charged a broker fee if you didn't hire a broker.
Listed By
This home has been saved by 9 users.
Listing by Douglas Elliman, Limited Liability Broker, 575 Madison Avenue, New York, NY 10022 | Brokerage Listing ID: 23599694
Unavailable
Delisted on 10/23/2025
Days on market
43 days
Last price change
No changes
About
*3D tour available - please inquire* FULLY FURNISHED/SHORT TERM LEASE INCLUSIVE OF HOUSEKEEPING AND UTILITIES * 2 Bedrooms, 2 Bathrooms — Experience Brooklyn like a local when you rent this 2 bedroom/2 bath fully furnished apartment located in a doorman, elevator building in the Williamsburg section of Brooklyn in New York City.
Policies
Pets allowed
Cats and dogs allowed
Home features
Central air
Dishwasher
Furnished
Hardwood floors
View
City, Garden, Park, Skyline, Water
Washer/dryer
Building amenities
Services and facilities
Bike room
Concierge
Doorman
Full-time
Elevator
Live-in super
Parking
Garage
Wheelchair access
Wellness and recreation
Children's playroom
Gym
Shared outdoor space
Courtyard
Roof deck
About the building
Schaefer Landing South
446 Kent Avenue, Brooklyn, NY 11249
75 units
14 stories
2003 built
Property history
Prices shown are base rent only. For total monthly price and additional fees, see .
| Date | Base rent | Event |
|---|---|---|
10/23/2025 | $8,500 | Delisted by Douglas Elliman |
9/10/2025 | $8,500 | Listed by Douglas Elliman |
5/12/2025 | $8,500 | |
9/18/2024 | $8,500 | |
6/12/2024 | $8,500 |
Past listing photos
Sign in to take a closer look at how this home compares to similar homes.
Explore Williamsburg
Transit
| Location | Distance |
|---|---|
Ferryat South 8th Street Ferry landing | under 500 feet |
JMZat Marcy Av | 0.54 miles |
JMat Hewes St | 0.79 miles |
Ferryat North 5th Street Ferry landing | 0.81 miles |
Lat Bedford Av | 0.84 miles |
About Williamsburg
Rental prices shown are base rent before any fees. Visit listings for cost and fees breakdown.
SalesMedian asking price
2 beds
$1.8M
RentalsMedian asking base rent
2 beds
$5,300
Williamsburg is Brooklyn's booming epicenter with a well-deserved and worldwide reputation for being an influential hub thanks to a thriving cultural scene. Here you will find eye-catching new construction, brownstones, and prewars sitting next to historic buildings on streets dotted with restaurants, art spaces, boutiques, and more. With a Manhattan-facing waterfront (hello Domino Park!) and its large weekend markets (we're talking about you, Smorgasburg, and Artists & Fleas), the neighborhood is ideal for strolling and people watching. Another fringe benefit is Williamsburg's proximity to Manhattan via the G, L, M, and N subway lines.
Learn more about WilliamsburgSimilar homes
Prices shown are base rent only and don't include any fees. Visit each listing to see a complete cost breakdown.
Similar Homes looks at ad spend and other factors like location, price, and number of beds and baths.


























































































































































































































