View this home virtually
$575,000
For Sale
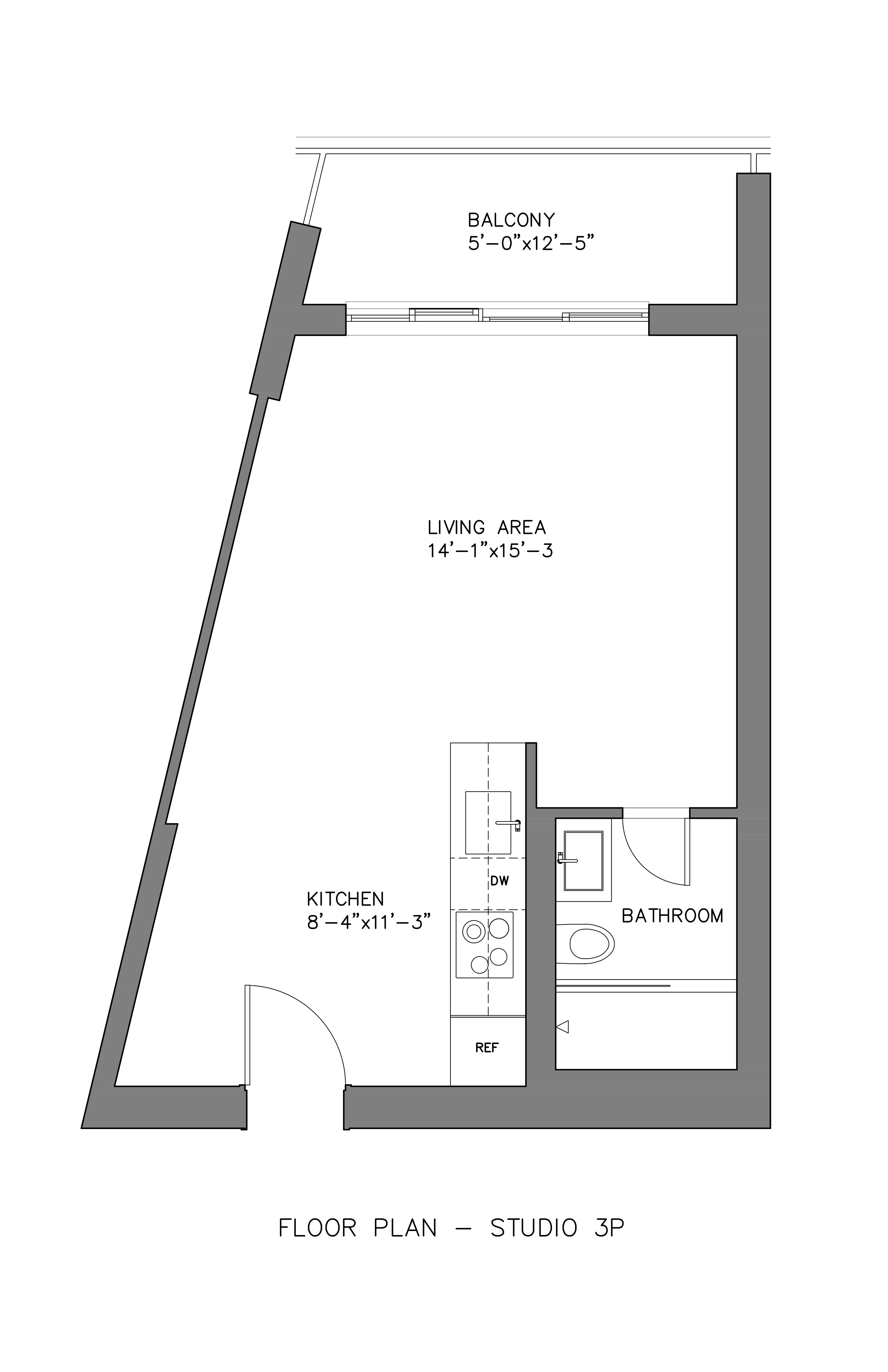
- ft²
2 rooms
Studio
1 bath
Condo
- Astoria
Resale
This home has been saved by 35 users.
Listing by Compass, Corporate Broker, 90 5th Avenue, New York, NY 10011-7629
Common charges
$365/mo
Estimated payment
$4,058/mo
Taxes
$252/mo
Tax abatement
No info
About
Seller’s agent
description
Direct River Views • Private Balcony • Indoor Parking Included
Enjoy stunning river views from this fully renovated alcove studio — complete with a private balcony and dedicated indoor parking space, all for the same price or less than a rental.
Key Features:
Newly renovated throughout with wide-plank floors and new windows
Energy-efficient heating & cooling system
Open single-wall kitchen with custom-paneled...
Policies
Sorry, policy info isn’t available right now. Check back later.
Home features
Dishwasher
Private outdoor space
Balcony
View
City, Park, Skyline, Water
Building amenities
Services and facilities
Bike room
Doorman
Elevator
Laundry in building
Live-in super
Package room
Parking
Garage
Wellness and recreation
Gym
Media room
Swimming pool
Shared outdoor space
Courtyard
About the building
Shore Towers
25-40 Shore Boulevard, Astoria, NY 11102
407 units
23 stories
1989 built
For sale
5 available units for saleFor rent
4 available units for rentDocuments and permits
View documents and permitsProperty history
- Price Change: No changes
- Days on market: 153 days
| Date | Price | Event |
|---|---|---|
11/3/2025 | $575,000 | Listed by Compass |
11/23/2021 | $410,000 | |
10/6/2021 | $429,999 | |
8/23/2021 | $429,999 | Price decreased by 4% |
7/27/2021 | $449,000 | Price decreased by 2% |
Past listing photos
Sign in to take a closer look at how this home compares to similar homes.
Explore Astoria
Transit
| Location | Distance |
|---|---|
Ferryat Astoria Ferry Landing | 0.41 miles |
NWat Astoria Blvd | 0.71 miles |
NWat 30th Av | 0.73 miles |
NWat Astoria–Ditmars Blvd | 0.89 miles |
NWat Broadway | 0.96 miles |
About Astoria
Rental prices shown are base rent before any fees. Visit listings for cost and fees breakdown.
SalesMedian asking price
Studio
$499K
RentalsMedian asking base rent
Studio
$2,500
Home to some 160,000 residents, Astoria is a bustling neighborhood long known for its great ethnic food, busy commercial thoroughfares and charming single-family homes. Astoria's quick commute into Midtown Manhattan (15 minutes on the N, R, W, or M) and reasonable home prices, however, have recently begun to attract newcomers. New developments are now cropping up and changing the landscape, too. Now, the neighborhood's historic single-family homes and postwar co-op buildings are interspersed with condominiums and upscale rentals.
Learn more about Astoria














































































































