- ft²
6 rooms
2 beds
1 bath
Condo
- Park Slope
Sponsor unit
Sponsor unitA unit being sold for the first time. Itâs typically owned by the building. For condos, this is often the developer. For co-ops, this is often the buildingâs original owner before it went co-op.
recorded sale
Sold on 11/7/2024
Verified by closing records
Last listed for $1,449,000
Seller's agents
This home has been saved by 319 users.
Listing by Douglas Elliman, Limited Liability Broker, 237 Smith Street, Brooklyn, NY 11231 | Brokerage Listing ID: 23006407
Common charges
$493/mo
Estimated payment
$8,504/mo
Legal disclaimerAll calculations are estimates provided by StreetEasy for informational purposes only. Actual amounts or financing terms may vary. Please contact your mortgage provider for specifics.Taxes
$684/mo
Tax abatement
No info
About
Sellerâs agent
description
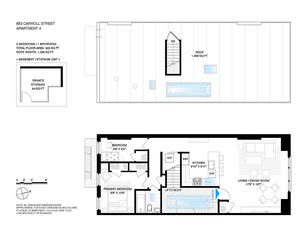
Welcome to 853 Carroll Street! This gorgeous Romanesque Revival mansion on one of the most desirable blocks in Park Slope offers five condo residences for sale. Designed by the legendary CPH Gilbert, built by well-known developer Harvey Murdock, and located in Brooklynâs âGold Coastâ, 853 Carroll is a sterling example of the luxury constructed in 1880âs Park Slope.
Policies
Pets allowed
Cats and dogs allowed
Home features
Central air
Dishwasher
Hardwood floors
Private outdoor space
Roof deck, Roof rights
View
Park
Washer/dryer
Building amenities
Services and facilities
Storage space
Wellness and recreation
No info on wellness and recreation
Shared outdoor space
No info on shared outdoor space
About the building
The 853 Carroll Street Condominium
853 Carroll Street, Brooklyn, NY 11215
5 units
4 stories
1888 built
For sale
0 available units for saleFor rent
0 available units for rentDocuments and permits
View documents and permitsProperty history
- Price Change: â $50,000 (-3.3%) on 9/26/24
- Days on market: 155 daysThis is the number of days the listing has been on StreetEasy.
| Date | Price | Event |
|---|---|---|
11/7/2024 | $1,400,000 | Sold by Douglas Elliman |
10/11/2024 | $1,449,000 | In contract |
9/26/2024 | $1,449,000 | Price decreased by 3% |
7/26/2024 | $1,499,000 | Price decreased by 6% |
7/10/2024 | $1,595,000 | Price decreased by 5% |
Past listing photos
Sign in to take a closer look at how this home compares to similar homes.
Explore Park Slope
Transit
| Location | Distance |
|---|---|
23at Grand Army Plaza | 0.23 miles |
BQat 7th Av | 0.38 miles |
23at Eastern ParkwayâBrooklyn Museum | 0.4 miles |
Fat 7th Av | 0.55 miles |
23at Bergen St | 0.63 miles |
About Park Slope
Rental prices shown are base rent before any fees. Visit listings for cost and fees breakdown.
SalesMedian asking price
2 beds
$1.5M
RentalsMedian asking base rent
2 beds
$4,750
Park Slope has a tranquil, easygoing vibe and can almost feel suburban. Strollers and children of all ages are a constant presence on sidewalks, as are shoppers patronizing local boutiques and dog walkers heading up to the park. Residents are Brooklynites through and through and tend to be socially conscious, artistically minded, and committed to their community. At night, a casual restaurant scene comes alive. For anyone looking for a night out, there are plenty of beer gardens and wine bars to patronize, especially in the South Slope, but don't go looking for dance clubs.
Learn more about Park Slope



















































































































