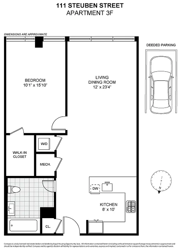
806 ft²
$991 per ft²
3 rooms
1 bed
1 bath
Condo
- Clinton Hill
Resale
reported sale
Sold on 5/10/2024
Not yet verified by closing records
Seller's agents
This home has been saved by 129 users.
Listing by Compass, Corporate Broker, 514 2nd Street, Brooklyn, NY 11215 | Brokerage Listing ID: 1436293404991815145
Common charges
$885/mo
Estimated payment
$5,655/mo
Legal disclaimerAll calculations are estimates provided by StreetEasy for informational purposes only. Actual amounts or financing terms may vary. Please contact your mortgage provider for specifics.Taxes
$396/mo
Tax abatement
No info
About
Seller’s agent
description
Back on the market with a refresh and completely vacant! Come get your Clinton Hill dream home WITH PARKING!
Step into the lap of luxury in the heart of Brooklyn! This exceptional 1 bedroom, 1 bathroom condo, complete with its own deeded parking space, offers a rare opportunity for those seeking the finest in urban living. Boasting an expansive 800+ square feet, this thoughtfully designed residence is bathed in natural light thanks to its southern exposure.
Policies
Sorry, policy info isn’t available right now. Check back later.
Home features
Central air
Dishwasher
Hardwood floors
View
City, Park
Washer/dryer
Building amenities
Services and facilities
Elevator
Laundry in building
Parking
Garage
Wellness and recreation
Gym
Media room
Shared outdoor space
No info on shared outdoor space
About the building
The Absolute
111 Steuben Street, Brooklyn, NY 11205
35 units
6 stories
2008 built
For sale
1 available units for saleFor rent
0 available units for rentDocuments and permits
View documents and permitsProperty history
- Price Change: ↓ $21,000 (-2.6%) on 4/3/24
- Days on market: 91 daysThis is the number of days the listing has been on StreetEasy.
| Date | Price | Event |
|---|---|---|
5/10/2024 | $799,000 | Sold by Compass |
4/22/2024 | $799,000 | In contract |
4/3/2024 | $799,000 | Price decreased by 3% |
2/29/2024 | $820,000 | Price increased by 3% |
2/29/2024 | $795,000 | Listed by Compass |
Past listing photos
Sign in to take a closer look at how this home compares to similar homes.
Explore Clinton Hill
Transit
| Location | Distance |
|---|---|
Gat Classon Av | 0.38 miles |
Gat Clinton–Washington Avs | 0.41 miles |
Gat Bedford–Nostrand Avs | 0.5 miles |
Gat Myrtle–Willoughby Avs | 0.71 miles |
Cat Clinton & Washington Avs | 0.75 miles |




































































































































