$5,500
For Rent
Base rent only. For total monthly price and additional fees, see .
760 ft²
$86 per ft²
4 rooms
1 bed
1.5 baths
Condo
- Lincoln Square
Under NYC law, you can't be charged a broker fee if you didn't hire a broker.
Listed By
Listing by RSNY Realty, Limited Liability Broker, 445 Fifth Avenue Ste, New York, NY 10016
Available
Available now
Days on market
Listed today
Last price change
No changes
About
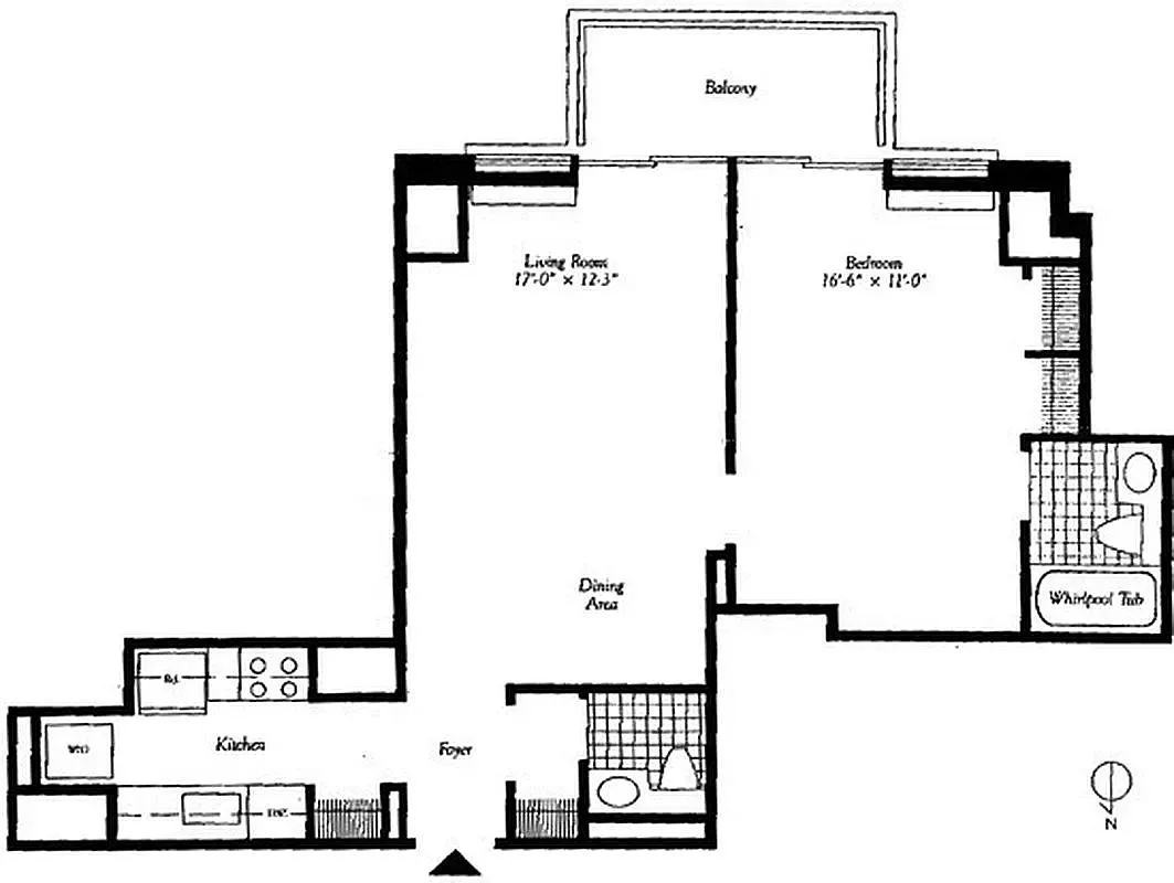
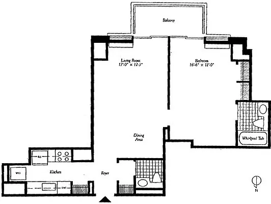
Welcome to Residence 21H at The Alfred - a stunning high-floor one-bedroom with a private balcony and sweeping south-facing city views that flood the home with incredible natural light all day long.
From the moment you enter, you're greeted by an airy, open layout designed for both comfort and style. The expansive living and dining area flows seamlessly to your private balcony - the perfect place to enjoy morning coffee above the city or unwind with sunset views over the Manhattan skyline.
Policies
Pets allowed
Home features
Central air
Dishwasher
Hardwood floors
Private outdoor space
Balcony
View
City, Park, Skyline
Washer/dryer
Building amenities
Services and facilities
Bike room
Concierge
Doorman
Full-time
Elevator
Laundry in building
Live-in super
Package room
Storage space
Locker/cage
Valet service
Wheelchair access
Wellness and recreation
Children's playroom
Gym
Swimming pool
Shared outdoor space
Courtyard
Garden
About the building
The Alfred
161 West 61st Street, New York, NY 10023
219 units
36 stories
1988 built
Property history
Prices shown are base rent only. For total monthly price and additional fees, see .
| Date | Base rent | Event |
|---|---|---|
3/7/2026 | $5,500 | Listed by RSNY Realty |
8/6/2021 | $3,400 | |
5/7/2021 | $3,400 | |
4/29/2021 | $3,400 | Price increased by 21% |
4/29/2021 | $2,800 | Price decreased by 18% |
Past listing photos
Sign in to take a closer look at how this home compares to similar homes.
Explore Lincoln Square
Transit
| Location | Distance |
|---|---|
1at 66th St–Lincoln Center | 0.22 miles |
ABCD1at 59th St–Columbus Circle | 0.24 miles |
NRWat 57th St–7th Av | 0.5 miles |
BCat 72nd St | 0.51 miles |
123at 72nd St | 0.52 miles |
About Lincoln Square
Rental prices shown are base rent before any fees. Visit listings for cost and fees breakdown.
SalesMedian asking price
1 bed
$977K
RentalsMedian asking base rent
1 bed
$5,437
Named after and defined by the Lincoln Center for the Performing Arts, Lincoln Square is home to the New York Philharmonic, the New York City Ballet and the Metropolitan Opera, among many other cultural institutions. The neighborhood blends the prewar architecture and and style of the Upper West Side with modern, tall residential buildings. Great subway access at Columbus Circle and proximity to Midtown make this neighborhood popular with those looking to be in the center of it all.
Learn more about Lincoln SquareSimilar homes
Prices shown are base rent only and don't include any fees. Visit each listing to see a complete cost breakdown.
Similar Homes looks at ad spend and other factors like location, price, and number of beds and baths.















































































































































































































