- ft²
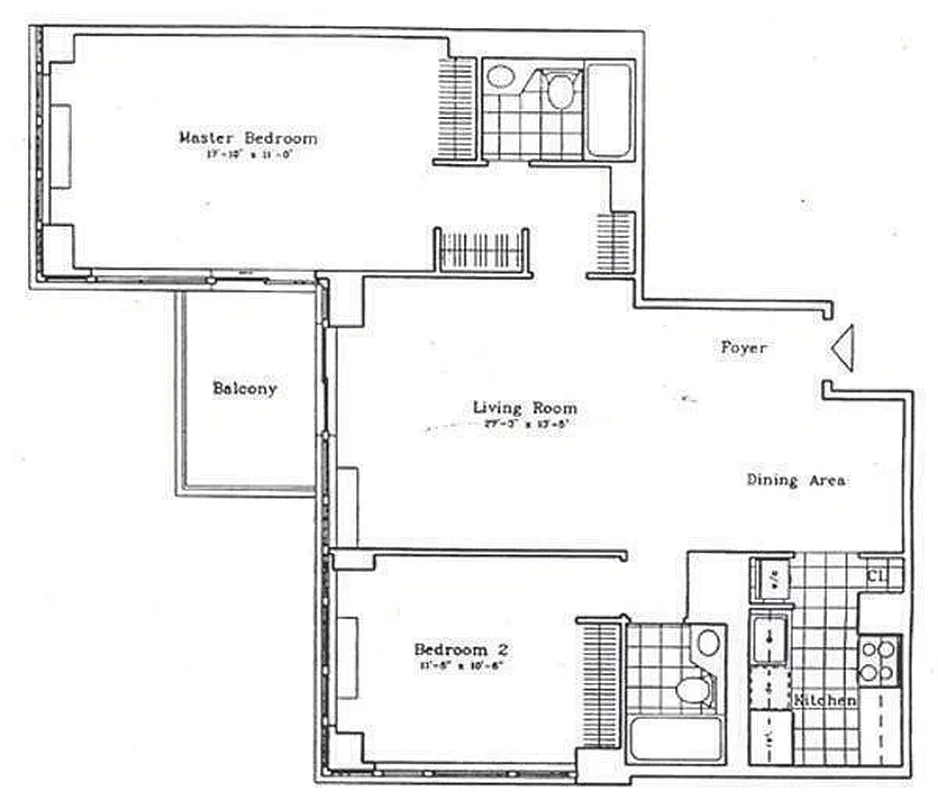
5 rooms
2 beds
2 baths
Condo
- Lincoln Square
Resale
recorded sale
Sold on 7/2/2024
Verified by closing records
Last listed for $1,799,000
Seller's agent
This home has been saved by 126 users.
Listing by R New York, Limited Liability Broker, 641 Lexington Avenue, New York, NY 10022
Common charges
$1,609/mo
Estimated payment
$13,594/mo
Legal disclaimerAll calculations are estimates provided by StreetEasy for informational purposes only. Actual amounts or financing terms may vary. Please contact your mortgage provider for specifics.Taxes
$1,403/mo
Tax abatement
No info
About
Seller’s agent
Buyer’s agent
description
Mint 2 Bed, 2 Bath Condo 1 Block from Central Park! This Split-2 Bed, Corner unit Perched on the 21st Floor faces South & West with Light Pouring in All Day. Enjoy City Views and Relax on your Balcony while gazing at Stunning Sunsets. Stylishly Renovated Kitchen featuring Stainless GE Profile Appliances, Granite Countertops, Glass Tiled Backsplash, Wood Cabinets & a Marvel Wine Fridge.
Policies
Pets allowed
Cats and dogs allowed
Home features
Dishwasher
Hardwood floors
Private outdoor space
Balcony, Garden, Terrace
View
City, Skyline
Washer/dryer
Building amenities
Services and facilities
Bike room
Concierge
Doorman
Full-time
Elevator
Laundry in building
Live-in super
Package room
Parking
Garage
Wellness and recreation
No info on wellness and recreation
Shared outdoor space
Courtyard
About the building
The Allegro
62 West 62nd Street, New York, NY 10023
120 units
27 stories
1989 built
For sale
2 available units for saleFor rent
1 available units for rentDocuments and permits
View documents and permitsProperty history
- Price Change: ↓ $96,000 (-5.1%) on 2/25/24
- Days on market: 260 daysThis is the number of days the listing has been on StreetEasy.
| Date | Price | Event |
|---|---|---|
7/2/2024 | $1,750,000 | Sold by R New York |
2/25/2024 | $1,799,000 | Price decreased by 5% |
11/28/2023 | $1,895,000 | Price decreased by 5% |
10/30/2023 | $1,995,000 | Listed by R New York |
9/18/2007 | $1,447,000 |
Past listing photos
Sign in to take a closer look at how this home compares to similar homes.
Explore Lincoln Square
Transit
| Location | Distance |
|---|---|
ABCD1at 59th St–Columbus Circle | under 500 feet |
1at 66th St–Lincoln Center | 0.21 miles |
NRWat 57th St–7th Av | 0.35 miles |
BCat 72nd St | 0.42 miles |
BDEat 7th Av | 0.49 miles |
About Lincoln Square
Rental prices shown are base rent before any fees. Visit listings for cost and fees breakdown.
SalesMedian asking price
2 beds
$2.2M
RentalsMedian asking base rent
2 beds
$8,737
Named after and defined by the Lincoln Center for the Performing Arts, Lincoln Square is home to the New York Philharmonic, the New York City Ballet and the Metropolitan Opera, among many other cultural institutions. The neighborhood blends the prewar architecture and and style of the Upper West Side with modern, tall residential buildings. Great subway access at Columbus Circle and proximity to Midtown make this neighborhood popular with those looking to be in the center of it all.
Learn more about Lincoln Square























































































































