$715,000
For Sale
- ft²
3 rooms
1 bed
1 bath
Co-op
- Midtown South
Resale
This home has been saved by 11 users.
Listing by Compass, Corporate Broker, 110 5th Avenue, New York, NY 10011
Maintenance fees
$2,158/mo
Estimated payment
$5,569/mo
Taxes
Included in maintenance fees
Tax abatement
No info
About
Seller’s agent
description
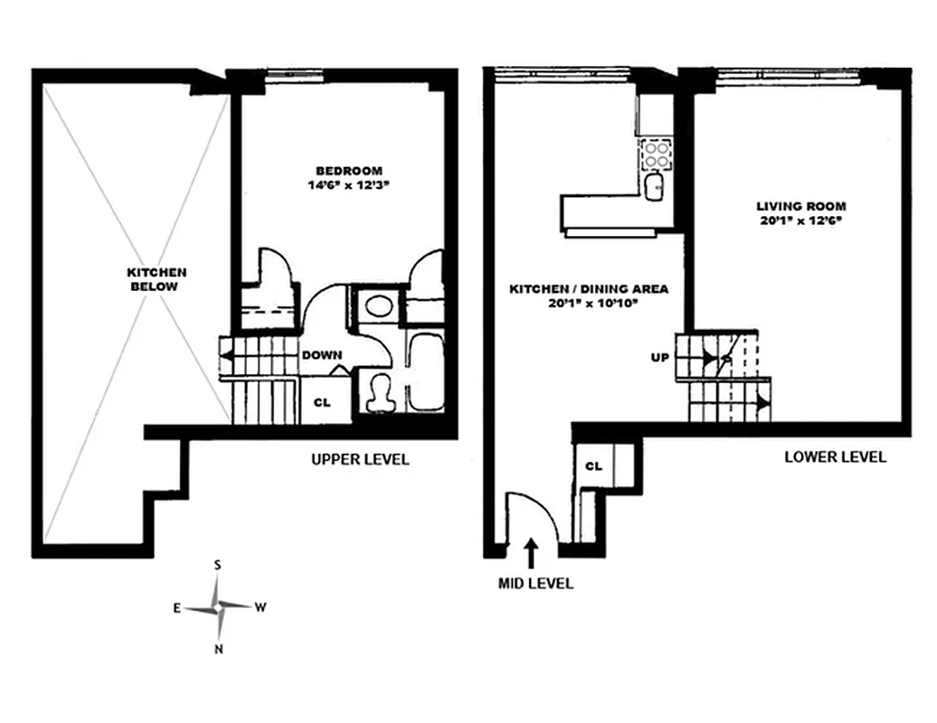
Welcome to your over-sized one bedroom (convertible two) with bright southern exposure. The large entry-level has an eat-in, open kitchen with stainless appliances and plenty of counter space and cabinets.
A few steps down the straight staircase, you are in the spacious 20' living room, with plenty of room for a second bedroom or home office. The upper level has a well proportioned bedroom with 3 closets and built in dresser and shelving.
Policies
Guarantors accepted
Pets allowed
Cats only (no dogs)
Pied-a-terre allowed
Home features
Central air
Dishwasher
Hardwood floors
View
City
Building amenities
Services and facilities
Bike room
Doorman
Full-time
Elevator
Laundry in building
Live-in super
Wellness and recreation
No info on wellness and recreation
Shared outdoor space
No info on shared outdoor space
About the building
The Antoinette
7 East 35th Street, New York, NY 10016
58 units
17 stories
1979 built
For sale
3 available units for saleFor rent
0 available units for rentDocuments and permits
View documents and permitsProperty history
- Price Change: No changes
- Days on market: 8 days
| Date | Price | Event |
|---|---|---|
4/20/2026 | $715,000 | Listed by Compass |
6/5/2018 | $695,000 | |
4/27/2018 | $715,000 | |
3/23/2018 | $715,000 | |
10/21/2011 | $455,000 |
Past listing photos
Sign in to take a closer look at how this home compares to similar homes.
Explore Midtown South
Transit
| Location | Distance |
|---|---|
6at 33rd St | 0.18 miles |
BDFMNQRWat 34th St–Herald Sq | 0.22 miles |
PATHat 33rd Street Station | 0.27 miles |
BDFM7at 42nd St | 0.32 miles |
BDFM7at 5th Av | 0.32 miles |































































































