View this home virtually
$749,000
For Sale
Delisted 12/4/2025
850 ft²
$881 per ft²
1 room
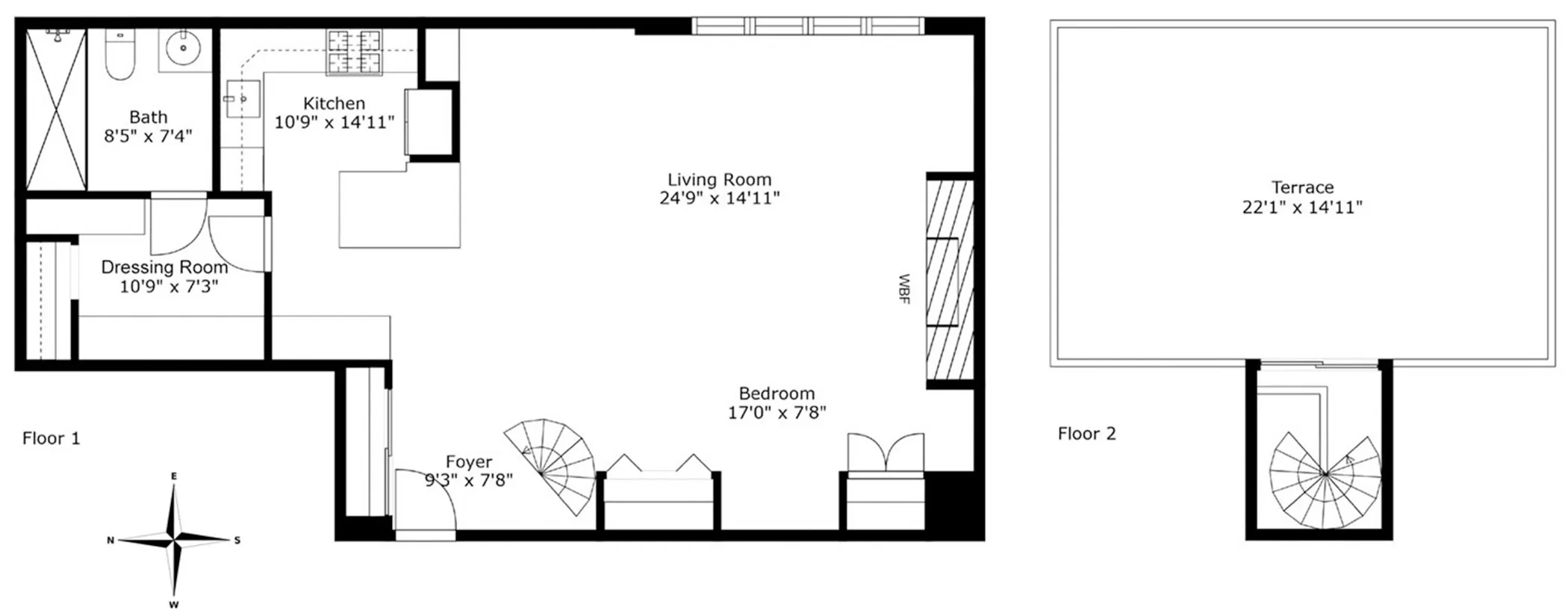
Studio
1 bath
Condop
- Hell's Kitchen
Resale
Seller's agent
This home has been saved by 45 users.
Listing by Compass, Corporate Broker, 10 East 53rd Street, New York, NY 10022
Maintenance fees
$1,190/mo
Estimated payment
$5,076/mo
Legal disclaimerAll calculations are estimates provided by StreetEasy for informational purposes only. Actual amounts or financing terms may vary. Please contact your mortgage provider for specifics.Taxes
Included in maintenance fees
Tax abatement
No info
About
Seller’s agent
description
Loft Penthouse with Private Roof Top...
This totally renovated "extra large" Penthouse Loft has it "ALL" with Wood Burning Fireplace, superb Chef’s Kitchen with a handsome Breakfast Bar, center Skylight and Dressing Area with custom Closets and Built-ins galore, including the masterfully concealed retractable bedding design.
The lofted space (850 Sq.Ft.
Policies
Co-purchase allowed
Gifts allowed
Guarantors accepted
Parents buying allowed
Pets allowed
Pied-a-terre allowed
Sublets allowed
Home features
Dishwasher
Fireplace
Wood
Private outdoor space
Roof deck
View
City, Skyline
Building amenities
Services and facilities
Bike room
Doorman
Full-time
Elevator
Laundry in building
Live-in super
Package room
Wellness and recreation
No info on wellness and recreation
Shared outdoor space
Roof deck
About the building
The Armory
529 West 42nd Street, New York, NY 10036
159 units
9 stories
1912 built
For sale
8 available units for saleFor rent
2 available units for rentDocuments and permits
View documents and permitsProperty history
- Price Change: No changes
- Days on market: 84 daysThis is the number of days the listing has been on StreetEasy.
| Date | Price | Event |
|---|---|---|
12/4/2025 | $749,000 | Delisted by Compass |
9/11/2025 | $749,000 | Listed by Compass |
6/17/2021 | $550,000 | |
2/27/2021 | $595,500 | |
8/20/2020 | $595,500 | Price decreased by 8% |
Past listing photos
Sign in to take a closer look at how this home compares to similar homes.
Explore Hell's Kitchen
Transit
| Location | Distance |
|---|---|
Ferryat W 39th Street Ferry Landing | 0.33 miles |
ACENQRWS1237at Times Square–42nd St | 0.44 miles |
7at 34 St Hudson Yards | 0.45 miles |
CEat 50th St | 0.53 miles |
123ACEat 34th St–Penn Station | 0.56 miles |



















































































































