976 ft²
$1,270 per ft²
5 rooms
1 bed
2 baths
Condo
- Williamsburg
Resale
recorded sale
Sold on 6/4/2025
Verified by closing records
Last listed for $1,250,000
Seller's agents
This home has been saved by 56 users.
Listing by Compass, Corporate Broker, 110 5th Avenue, New York, NY 10011
Common charges
$1,028/mo
Estimated payment
$8,724/mo
Taxes
$789/mo
Tax abatement
No info
About
Seller’s agent
Buyer’s agent
description
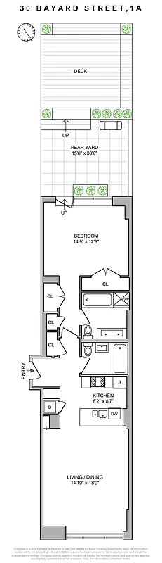
WILLIAMSBURG PARKFRONT 1-BEDROOM WITH PRIVATE BACKYARD & PARKING FOR A SEPARATE COST
Situated directly on McCarren Park and spanning nearly 1,000 interior sq. ft., 1A at 30 Bayard is an oversized 1-bedroom, 2 full baths condo featuring a beautiful 500 sq. ft. private garden. With only low rise buildings behind and McCarren Park out front, the apartment receives beautiful natural light all day long.
Policies
Pets allowed
Cats and dogs allowed
Home features
Central air
Dishwasher
Hardwood floors
Private outdoor space
Garden
View
Park
Washer/dryer
Building amenities
Services and facilities
Bike room
Doorman
Part-time
Elevator
Live-in super
Package room
Parking
Storage space
Cold storage
Wellness and recreation
Gym
Shared outdoor space
Roof deck
About the building
The Aurora, 30 Bayard
30 Bayard Street, Brooklyn, NY 11211
- units
- stories
- built
For sale
1 available units for saleFor rent
0 available units for rentDocuments and permits
View documents and permitsProperty history
- Price Change: No changes
- Days on market: 36 days
| Date | Price | Event |
|---|---|---|
6/4/2025 | $1,240,000 | Sold by Compass |
4/2/2025 | $1,250,000 | In contract |
2/25/2025 | $1,250,000 | Listed by Compass |
6/24/2016 | $1,100,000 | |
5/31/2016 | $1,100,000 |
Past listing photos
Sign in to take a closer look at how this home compares to similar homes.
Explore Williamsburg
Transit
| Location | Distance |
|---|---|
Lat Bedford Av | 0.3 miles |
GLat Metropolitan Av | 0.32 miles |
GLat Lorimer St | 0.32 miles |
Gat Nassau Av | 0.34 miles |
Lat Graham Av | 0.44 miles |
About Williamsburg
Rental prices shown are base rent before any fees. Visit listings for cost and fees breakdown.
SalesMedian asking price
1 bed
$1.13M
RentalsMedian asking base rent
1 bed
$4,600
Williamsburg is Brooklyn's booming epicenter with a well-deserved and worldwide reputation for being an influential hub thanks to a thriving cultural scene. Here you will find eye-catching new construction, brownstones, and prewars sitting next to historic buildings on streets dotted with restaurants, art spaces, boutiques, and more. With a Manhattan-facing waterfront (hello Domino Park!) and its large weekend markets (we're talking about you, Smorgasburg, and Artists & Fleas), the neighborhood is ideal for strolling and people watching. Another fringe benefit is Williamsburg's proximity to Manhattan via the G, L, M, and N subway lines.
Learn more about Williamsburg












































































































































