$17,750,000
For Sale
Delisted 4/17/2025
- ft²
16 rooms
5 beds
7 baths
Co-op
- Upper West Side
Resale
Seller's agent
This home has been saved by 15 users.
Listing by Corcoran, Limited Liability Broker, 590 Madison Avenue, New York, NY 10022
Maintenance fees
$15,072/mo
Estimated payment
$72,635/mo
Legal disclaimerAll calculations are estimates provided by StreetEasy for informational purposes only. Actual amounts or financing terms may vary. Please contact your mortgage provider for specifics.Taxes
Included in maintenance fees
Tax abatement
No info
About
Seller’s agent
description
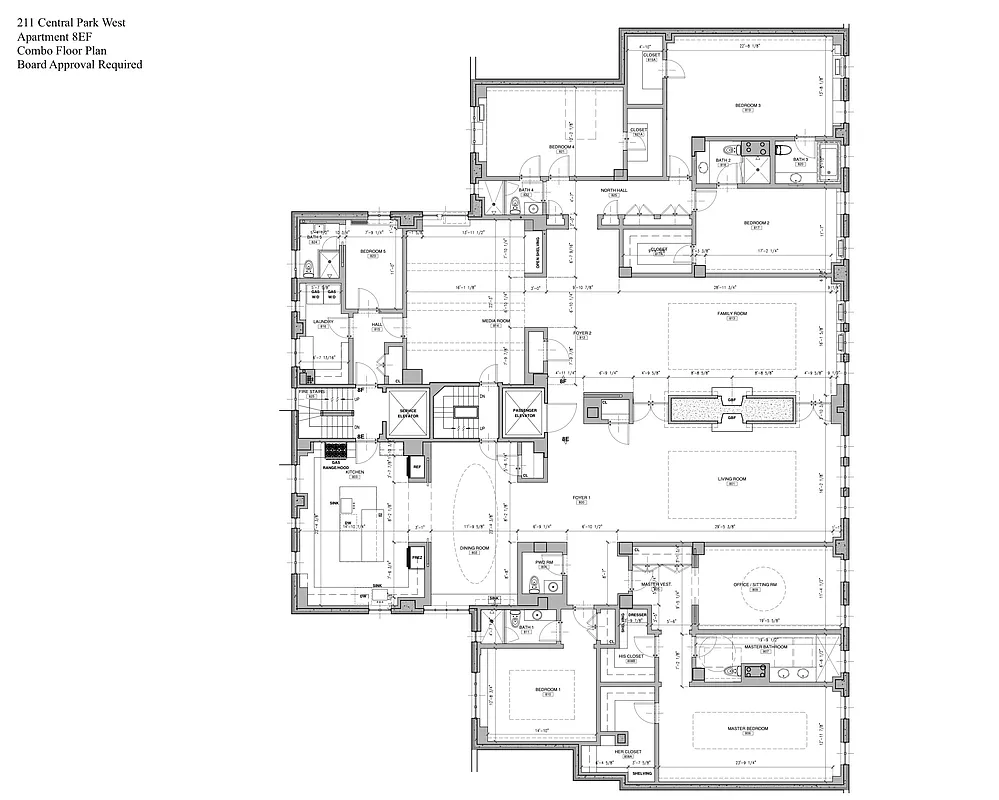
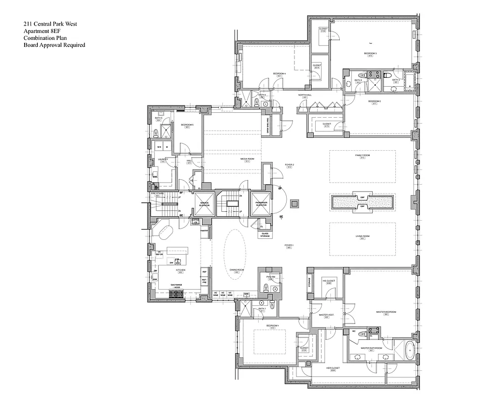
211 Central Park West 8E & 8F
Positioned on the 8th floor of the distinguished Beresford at 211 Central Park West, this unique opportunity combines units 8E and 8F, offering the potential to create a sprawling 6- or 7-bedroom residence with over 82 feet of linear park frontage and stunning views of Central Park from six rooms.
Policies
Pets allowed
Cats and dogs allowed
Home features
No info on home features
Building amenities
Services and facilities
Bike room
Doorman
Full-time
Elevator
Laundry in building
Live-in super
Storage space
Cold storage
Wellness and recreation
Gym
Shared outdoor space
No info on shared outdoor space
About the building
The Beresford
211 Central Park West, New York, NY 10024
193 units
20 stories
1929 built
For sale
8 available units for saleFor rent
0 available units for rentDocuments and permits
View documents and permitsProperty history
- Price Change: ↓ $2,150,000 (-10.8%) on 3/14/25
- Days on market: 154 daysThis is the number of days the listing has been on StreetEasy.
| Date | Price | Event |
|---|---|---|
4/17/2025 | $17,750,000 | Delisted by Corcoran |
3/14/2025 | $17,750,000 | Price decreased by 11% |
11/14/2024 | $19,900,000 | Listed by Corcoran |
Sign in to take a closer look at how this home compares to similar homes.
Explore Upper West Side
Transit
| Location | Distance |
|---|---|
BCat 81st St–Museum of Natural History | under 500 feet |
BCat 86th St | 0.22 miles |
1at 79th St | 0.42 miles |
1at 86th St | 0.44 miles |
BCat 72nd St | 0.48 miles |
About Upper West Side
Rental prices shown are base rent before any fees. Visit listings for cost and fees breakdown.
SalesMedian asking price
5 beds
$9M
RentalsMedian asking base rent
5 beds
$50,000
Sandwiched between two beautiful parks, the Upper West Side is one of the greenest spots in Manhattan. For that reason, it is a perennial favorite. The Upper West Side is relaxed, but never dull. There are plenty of low-key bars and restaurants to frequent along Amsterdam Avenue, and Broadway is an always-bustling commercial center. The wide, tree-lined streets still boast many mom-and-pop stores. Less posh than the Upper East Side, it is more easily accessible by public transportation, and real estate prices are just as, if not more, expensive.
Learn more about Upper West Side























































































































































































































































