$2,750
For Rent
Base rent only. For total monthly price and additional fees, see .
Rented 9/5/2023
460 ft²
$71 per ft²
2 rooms
Studio
1 bath
Condo
- Yorkville
Under NYC law, you can't be charged a broker fee if you didn't hire a broker.
Listed By
This home has been saved by 22 users.
Listing by Douglas Elliman, Limited Liability Broker, 575 Madison Avenue, New York, NY 10022 | Brokerage Listing ID: 22575123
Unavailable
Rented on 9/5/2023
Days on market
7 days
Last price change
No changes
About
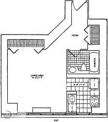
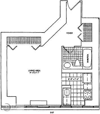
JUST LISTED (Wont last long!) Super Bright High Floor Studio with amazing Eastern City views. Features a wall of windows, pass-through windowed kitchen, marble bathroom, and a built-in Murphy bed. The Channel Club has a 24 hour doorman, concierge, porter, live in super, gym, pool, sauna, children’s play room, laundry room and common storage.
Policies
Pets allowed
Cats and dogs allowed
Home features
No info on home features
Building amenities
Services and facilities
Bike room
Concierge
Doorman
Full-time
Elevator
Live-in super
Wellness and recreation
Children's playroom
Gym
Swimming pool
Shared outdoor space
No info on shared outdoor space
About the building
The Channel Club
455 East 86th Street, New York, NY 10028
141 units
39 stories
1986 built
Property history
Prices shown are base rent only. For total monthly price and additional fees, see .
| Date | Base rent | Event |
|---|---|---|
9/5/2023 | $2,750 | Rented by Douglas Elliman |
7/18/2023 | $2,750 | In contract |
7/11/2023 | $2,750 | Listed by Douglas Elliman |
9/21/2022 | $2,450 | |
8/15/2022 | $2,450 |
Past listing photos
Sign in to take a closer look at how this home compares to similar homes.
Explore Yorkville
Transit
| Location | Distance |
|---|---|
Qat 86th St | 0.24 miles |
Qat 96th St | 0.46 miles |
456at 86th St | 0.48 miles |
6at 77th St | 0.67 miles |
6at 96th St | 0.67 miles |
About Yorkville
Rental prices shown are base rent before any fees. Visit listings for cost and fees breakdown.
SalesMedian asking price
Studio
$435K
RentalsMedian asking base rent
Studio
$2,802
When George Washington commandeered the building site that would eventually become Gracie Mansion, he probably didn't imagine that this peaceful, riverside enclave would become the lively residential neighborhood it is today. Between then and now, Yorkville has seen a lot of change. Tony mansions and elevated trains went up at the turn of the century and then came down in the postwar years as a middle-class population moved in.
Now, the neighborhood is a haven of high-rise co-ops and condos interspersed with quiet rows of townhouses. The mixed housing stock makes Yorkville a practical choice for anyone seeking a slowed-down Manhattan vibe. Several avenues over from the throngs of Lexington and Third Avenues, Yorkville maintains a low-key, no-frills feel — it's a place where you'll find more diners and donut shops than upscale lounges and boutiques. This homey attitude is writ in its storefronts, where the food is kept simple and the owners are often from around the block.
Similar homes
Prices shown are base rent only and don't include any fees. Visit each listing to see a complete cost breakdown.
Similar Homes looks at ad spend and other factors like location, price, and number of beds and baths.




































































