View this home virtually
$1,895,000
For Sale
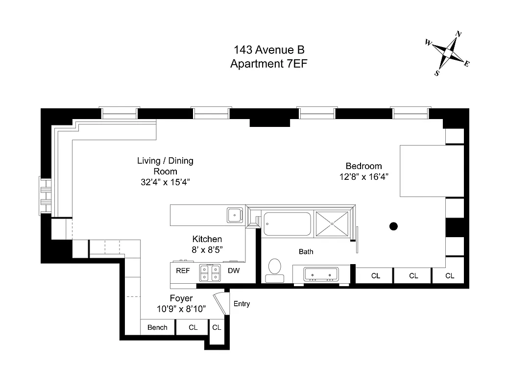
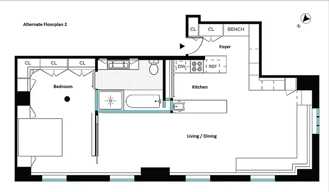
1,150 ft²
$1,647 per ft²
4 rooms
1 bed
1 bath
Condo
- East Village
Resale
This home has been saved by 12 users.
Open Houses
Sun, Jan 11 (8:30–8:45 PM ET), by appt only
Mon, Jan 12 (8:30–8:45 PM ET), by appt only
Listing by Douglas Elliman, Limited Liability Broker, 111 5th Avenue, New York, NY 10003 | Brokerage Listing ID: 23673996
Listing updated in the last 2 days
Common charges
$1,668/mo
Estimated payment
$13,031/mo
Legal disclaimerAll calculations are estimates provided by StreetEasy for informational purposes only. Actual amounts or financing terms may vary. Please contact your mortgage provider for specifics.Taxes
$1,606/mo
Tax abatement
No info
About
Seller’s agent
description
This zen modernist home has a rare relationship with Tompkins Square Park. It sits just above where the treeline meets the city, so morning light moves through the branches and into the space before the rest of the neighborhood wakes up. Throughout the day the atmosphere shifts with the weather. Snow, rain, and late-day sun all read differently from this vantage point, and the park becomes part of the interior experience rather than a distant view.
Policies
Pets allowed
Cats and dogs allowed
Home features
No info on home features
Building amenities
Services and facilities
Bike room
Doorman
Full-time
Elevator
Laundry in building
Live-in super
Wellness and recreation
No info on wellness and recreation
Shared outdoor space
No info on shared outdoor space
About the building
The Christodora House
143 Avenue B, New York, NY 10009
83 units
16 stories
1928 built
For sale
2 available units for saleFor rent
0 available units for rentDocuments and permits
View documents and permitsProperty history
- Price Change: No changes
- Days on market: 5 daysThis is the number of days the listing has been on StreetEasy.
| Date | Price | Event |
|---|---|---|
1/6/2026 | $1,895,000 | Listed by Douglas Elliman |
12/1/2025 | $1,995,000 | |
9/3/2025 | $1,995,000 | Price decreased by 13% |
6/5/2025 | $2,300,000 |
Sign in to take a closer look at how this home compares to similar homes.
Explore East Village
Transit
| Location | Distance |
|---|---|
Lat 1st Av | 0.36 miles |
Fat 2nd Av | 0.51 miles |
Lat 3rd Av | 0.58 miles |
6at Astor Place | 0.62 miles |
FJMZat Essex St | 0.66 miles |
About East Village
Rental prices shown are base rent before any fees. Visit listings for cost and fees breakdown.
SalesMedian asking price
1 bed
$727K
RentalsMedian asking base rent
1 bed
$3,995
Known and loved for being the birthplace of punk rock, the East Village is known for its vibrant restaurants and cocktail dens. During the day, however, the neighborhood slows down and has a tranquil feel. Meander down a leafy side street, and you'll happen upon plenty of prewar buildings and rusting fire escapes, which lend the East Village its old-fashioned charm.
Learn more about East Village










































































































































































