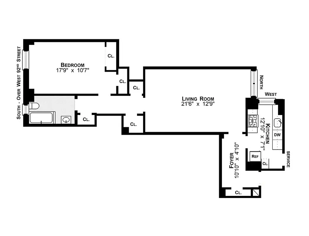
800 ft²
$928 per ft²
3 rooms
1 bed
1 bath
Co-op
- Upper West Side
Resale
recorded sale
Sold on 9/26/2025
Verified by closing records
Last listed for $750,000
Seller's agents
This home has been saved by 51 users.
Listing by Magnetic, Real Estate Principal Office, 142 West 57th Street, New York, NY 10019
Maintenance fees
$1,416/mo
Estimated payment
$5,110/mo
Legal disclaimerAll calculations are estimates provided by StreetEasy for informational purposes only. Actual amounts or financing terms may vary. Please contact your mortgage provider for specifics.Taxes
Included in maintenance fees
Tax abatement
No info
About
Seller’s agent
Buyer’s agent
description
Oversized and Renovated Pre-War One-Bedroom Apartment in the Heart of the Upper West Side
Welcome home to this beautifully updated pre-war property, perfectly situated in the vibrant Upper West Side. With a bright and airy open floor plan, this home offers more than 800 square feet of generous living space, ideal for both relaxation and entertaining.
Policies
Co-purchase allowed
Gifts allowed
Guarantors accepted
Parents buying allowed
Pets allowed
Cats and dogs allowed
Pied-a-terre allowed
Home features
Dishwasher
Building amenities
Services and facilities
Bike room
Doorman
Full-time
Elevator
Live-in super
Wellness and recreation
No info on wellness and recreation
Shared outdoor space
No info on shared outdoor space
About the building
The Clayton
215 West 92nd Street, New York, NY 10025
146 units
15 stories
1922 built
For sale
0 available units for saleFor rent
0 available units for rentDocuments and permits
View documents and permitsProperty history
- Price Change: ↓ $25,000 (-3.2%) on 5/15/25
- Days on market: 80 daysThis is the number of days the listing has been on StreetEasy.
| Date | Price | Event |
|---|---|---|
9/26/2025 | $742,500 | Sold by Magnetic |
6/20/2025 | $750,000 | In contract |
5/15/2025 | $750,000 | Price decreased by 3% |
4/1/2025 | $775,000 | Listed by Magnetic |
2/13/2023 | $825,000 |
Past listing photos
Sign in to take a closer look at how this home compares to similar homes.
Explore Upper West Side
Transit
| Location | Distance |
|---|---|
123at 96th St | under 500 feet |
1at 86th St | 0.28 miles |
BCat 96th St | 0.42 miles |
BCat 86th St | 0.44 miles |
1at 103rd St | 0.54 miles |
About Upper West Side
Rental prices shown are base rent before any fees. Visit listings for cost and fees breakdown.
SalesMedian asking price
1 bed
$772.5K
RentalsMedian asking base rent
1 bed
$4,500
Sandwiched between two beautiful parks, the Upper West Side is one of the greenest spots in Manhattan. For that reason, it is a perennial favorite. The Upper West Side is relaxed, but never dull. There are plenty of low-key bars and restaurants to frequent along Amsterdam Avenue, and Broadway is an always-bustling commercial center. The wide, tree-lined streets still boast many mom-and-pop stores. Less posh than the Upper East Side, it is more easily accessible by public transportation, and real estate prices are just as, if not more, expensive.
Learn more about Upper West Side














































































































