$4,500
For Rent
Base rent only. For total monthly price and additional fees, see .
Rented 1/18/2023
840 ft²
$64 per ft²
3 rooms
1 bed
1 bath
Rental unit
- Yorkville
Under NYC law, you can't be charged a broker fee if you didn't hire a broker.
Listed By
This home has been saved by 27 users.
Listing by Corcoran, Limited Liability Broker, 590 Madison Avenue, New York, NY 10022
Unavailable
Rented on 1/18/2023
Days on market
6 days
Last price change
No changes
About
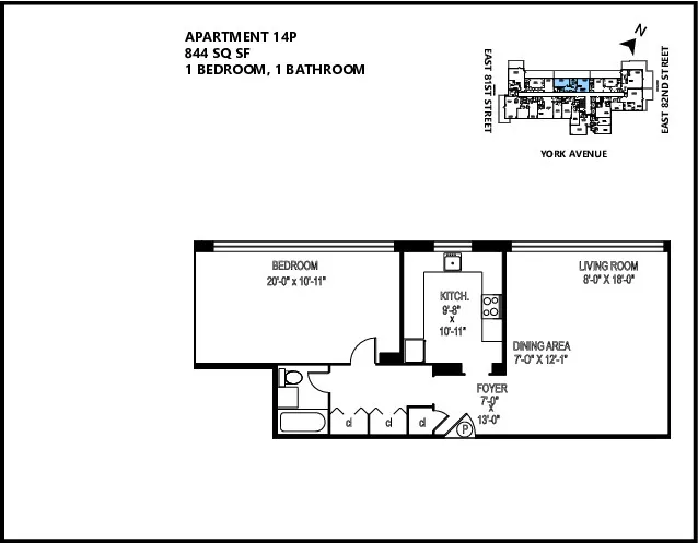
New on the market! Approx. 840sf 1 bedroom with a Massive Terrace located in the 80s, in a full time doorman building with laundry room, garage, bike room. Featuring Big living room with high ceilings, Large Terrace, king size bedroom, separate windowed kitchen with dishwasher/microwave, granite counters, ss appliances, ton of closet space.
Please note, floor plan is only showing the interior space.
Policies
Pets allowed
Home features
Central air
Dishwasher
Private outdoor space
Terrace
View
City
Building amenities
Services and facilities
Bike room
Doorman
Full-time
Elevator
Laundry in building
Live-in super
Package room
Parking
Garage
Wellness and recreation
No info on wellness and recreation
Shared outdoor space
No info on shared outdoor space
About the building
The Clermont
444 East 82nd Street, New York, NY 10028
415 units
33 stories
1966 built
Property history
Prices shown are base rent only. For total monthly price and additional fees, see .
| Date | Base rent | Event |
|---|---|---|
1/18/2023 | $4,500 | Rented by Corcoran |
1/11/2023 | $4,500 | In contract |
1/5/2023 | $4,500 | Listed by Corcoran |
2/13/2007 | $3,500 | |
2/13/2007 | $3,500 |
Past listing photos
Sign in to take a closer look at how this home compares to similar homes.
Explore Yorkville
Transit
| Location | Distance |
|---|---|
Qat 86th St | 0.26 miles |
456at 86th St | 0.51 miles |
6at 77th St | 0.52 miles |
Qat 72nd St | 0.55 miles |
Qat 96th St | 0.68 miles |
About Yorkville
Rental prices shown are base rent before any fees. Visit listings for cost and fees breakdown.
SalesMedian asking price
1 bed
$669K
RentalsMedian asking base rent
1 bed
$3,645
When George Washington commandeered the building site that would eventually become Gracie Mansion, he probably didn't imagine that this peaceful, riverside enclave would become the lively residential neighborhood it is today. Between then and now, Yorkville has seen a lot of change. Tony mansions and elevated trains went up at the turn of the century and then came down in the postwar years as a middle-class population moved in.
Now, the neighborhood is a haven of high-rise co-ops and condos interspersed with quiet rows of townhouses. The mixed housing stock makes Yorkville a practical choice for anyone seeking a slowed-down Manhattan vibe. Several avenues over from the throngs of Lexington and Third Avenues, Yorkville maintains a low-key, no-frills feel — it's a place where you'll find more diners and donut shops than upscale lounges and boutiques. This homey attitude is writ in its storefronts, where the food is kept simple and the owners are often from around the block.
Similar homes
Prices shown are base rent only and don't include any fees. Visit each listing to see a complete cost breakdown.
Similar Homes looks at ad spend and other factors like location, price, and number of beds and baths.
























































































































