$4,000
For Rent
Base rent only. For total monthly price and additional fees, see .
Rented 4/19/2022
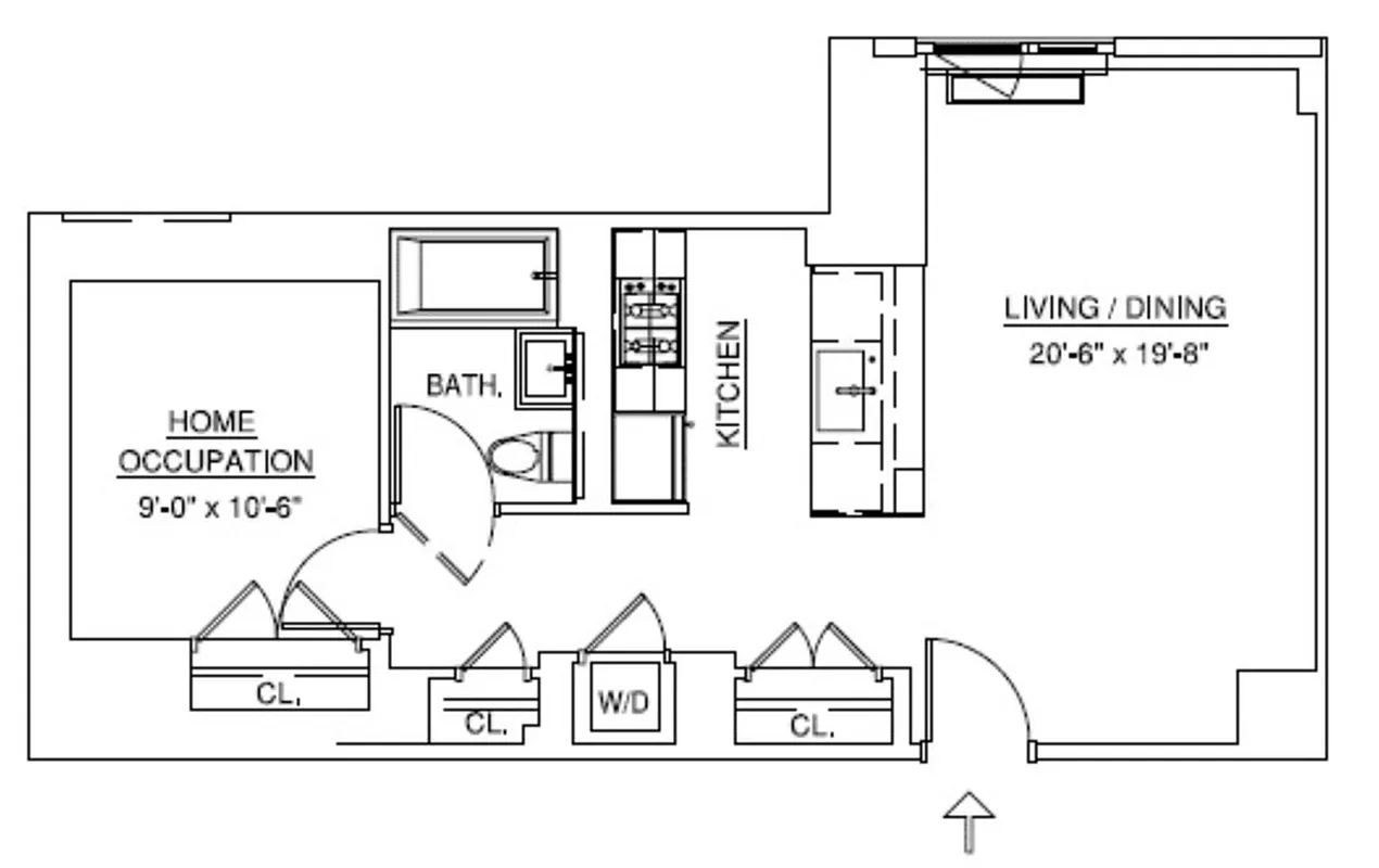
645 ft²
$74 per ft²
3 rooms
1 bed
1 bath
Condo
- Williamsburg
Under NYC law, you can't be charged a broker fee if you didn't hire a broker.
Listed By
This home has been saved by 151 users.
Listing by Corcoran, Limited Liability Broker
Unavailable
Rented on 4/19/2022
Days on market
7 days
Last price change
↑ $350 (+8.0%) on 4/19/22
About
**APPLICATIONS SUBMITTED NO LONGER SHOWING**
Welcome to 6N at The Edge South – a 645SF studio with home office that works perfectly as a 1 bedroom (fits queen sized bed with large closet).
The apartment offers:
- A large living room and fantastic island kitchen
- Great closet space
-Washer/Dryer in unit
- Top-of-the-line appliances and finishes including: Miele/Bosch appliance package, stone counter tops,...
Policies
Pets allowed
Cats and dogs allowed
Home features
Central air
Dishwasher
Hardwood floors
Washer/dryer
Building amenities
Services and facilities
Bike room
Concierge
Doorman
Full-time
Elevator
Laundry in building
Live-in super
Wellness and recreation
Gym
Swimming pool
Shared outdoor space
No info on shared outdoor space
About the building
The Edge - South Tower
22 North 6th Street, Brooklyn, NY 11249
360 units
15 stories
2008 built
Property history
Prices shown are base rent only. For total monthly price and additional fees, see .
| Date | Base rent | Event |
|---|---|---|
4/19/2022 | $4,000 | Rented by Corcoran |
4/19/2022 | $4,000 | Price increased by 10% |
4/19/2022 | $3,650 | In contract |
4/12/2022 | $3,650 | Listed by Corcoran |
3/6/2018 | $2,895 |
Past listing photos
Sign in to take a closer look at how this home compares to similar homes.
Explore Williamsburg
Transit
| Location | Distance |
|---|---|
Ferryat North 5th Street Ferry landing | under 500 feet |
Lat Bedford Av | 0.27 miles |
Gat Nassau Av | 0.65 miles |
GLat Metropolitan Av | 0.68 miles |
Ferryat South 8th Street Ferry landing | 0.76 miles |
About Williamsburg
Rental prices shown are base rent before any fees. Visit listings for cost and fees breakdown.
SalesMedian asking price
1 bed
$1.02M
RentalsMedian asking base rent
1 bed
$4,658
Williamsburg is Brooklyn's booming epicenter with a well-deserved and worldwide reputation for being an influential hub thanks to a thriving cultural scene. Here you will find eye-catching new construction, brownstones, and prewars sitting next to historic buildings on streets dotted with restaurants, art spaces, boutiques, and more. With a Manhattan-facing waterfront (hello Domino Park!) and its large weekend markets (we're talking about you, Smorgasburg, and Artists & Fleas), the neighborhood is ideal for strolling and people watching. Another fringe benefit is Williamsburg's proximity to Manhattan via the G, L, M, and N subway lines.
Learn more about WilliamsburgSimilar homes
Prices shown are base rent only and don't include any fees. Visit each listing to see a complete cost breakdown.
Similar Homes looks at ad spend and other factors like location, price, and number of beds and baths.







































































































































