$4,200
for rent
Base rent only. For total monthly price and additional fees, see .
No longer available 5/19/2023
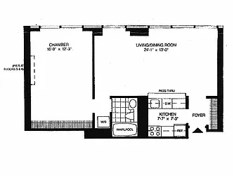
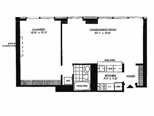
838 ft²
$60 per ft²
2 rooms
1 bed
1 bath
Condop
- Sutton Place
Under NYC law, you can't be charged a broker fee if you didn't hire a broker.
Listed by
Owner
This home has been saved by 43 users.
Listing by Owner
Unavailable
No longer available on 5/19/2023
Days on market
15 days
Last price change
No changes
About
Rented by Owner. Beautiful Large one bedroom apartment oversized double pane windows, wood flooring marble bathroom, washer/dryer in apartment ample closet space, very nice open views in a luxury white glove full service building with exercise and bike room, only 3 apartments on floor . Building located off Sutton Place, across form trader joes and TJ max.
Policies
Pets allowed
Cats and dogs allowed
Home features
View
City
Washer/dryer
Building amenities
Services and facilities
Bike room
Concierge
Doorman
Full-time
Elevator
Live-in super
Storage space
Wellness and recreation
Gym
Shared outdoor space
Courtyard
About the building
The Grand Sutton
418 East 59th Street, New York, NY 10022
74 units
36 stories
1988 built
Property history
Prices shown are base rent only. For total monthly price and additional fees, see .
| Date | Base rent | Event |
|---|---|---|
5/19/2023 | $4,200 | No longer available |
5/4/2023 | $4,200 | Listed by Owner |
5/4/2023 | $4,200 | Listed by Owner |
9/8/2021 | $3,350 | |
8/25/2021 | $3,350 |
Past listing photos
Sign in to take a closer look at how this home compares to similar homes.
Explore Sutton Place
Transit
| Location | Distance |
|---|---|
NRW456at Lexington Av/59th St | 0.32 miles |
EM6at Lexington Av–53rd St | 0.42 miles |
FQat Lexington Av/63rd St | 0.48 miles |
Qat 72nd St | 0.55 miles |
EM6at 51st St | 0.56 miles |
Similar homes
Prices shown are base rent only and don't include any fees. Visit each listing to see a complete cost breakdown.
Similar Homes looks at ad spend and other factors like location, price, and number of beds and baths.
























































































