View this home virtually
$1,299,000
For Sale
- ft²
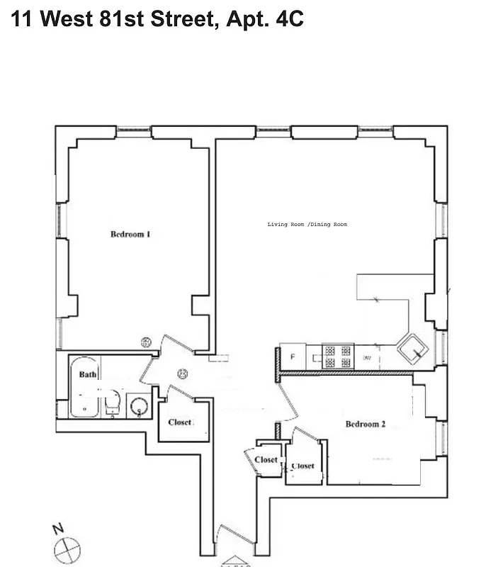
4 rooms
2 beds
1 bath
Co-op
- Upper West Side
Resale
This home has been saved by 102 users.
Listing by Luxus Manhattan Realty, Limited Liability Broker, 477 Madison Avenue, New York, NY 10022
Maintenance fees
$2,321/mo
Estimated payment
$8,559/mo
Legal disclaimerAll calculations are estimates provided by StreetEasy for informational purposes only. Actual amounts or financing terms may vary. Please contact your mortgage provider for specifics.Taxes
Included in maintenance fees
Tax abatement
No info
About
Seller’s agent
description
Step back in time in this beautiful Parisian inspired 2 bedroom one bath in the Hayden House, a beautiful Beaux Arts building .
Walk into this lovingly renovated, quiet home and enjoy the grand living room with double exposure, soaring 11' ceilings, pretty moldings, new floors, updated fully equipped chef's kitchen and windowed bath.
Policies
Sorry, policy info isn’t available right now. Check back later.
Home features
Dishwasher
Hardwood floors
Building amenities
Services and facilities
Bike room
Doorman
Part-time
Elevator
Live-in super
Wellness and recreation
No info on wellness and recreation
Shared outdoor space
No info on shared outdoor space
About the building
The Hayden House
11 West 81st Street, New York, NY 10024
36 units
12 stories
1908 built
For sale
2 available units for saleFor rent
0 available units for rentDocuments and permits
View documents and permitsProperty history
- Price Change: No changes
- Days on market: 156 daysThis is the number of days the listing has been on StreetEasy.
| Date | Price | Event |
|---|---|---|
9/4/2025 | $1,299,000 | Listed by Luxus Manhattan Realty |
Sign in to take a closer look at how this home compares to similar homes.
Explore Upper West Side
Transit
| Location | Distance |
|---|---|
BCat 81st St–Museum of Natural History | under 500 feet |
BCat 86th St | 0.23 miles |
1at 79th St | 0.39 miles |
1at 86th St | 0.43 miles |
BCat 72nd St | 0.47 miles |
About Upper West Side
Rental prices shown are base rent before any fees. Visit listings for cost and fees breakdown.
SalesMedian asking price
2 beds
$1.6M
RentalsMedian asking base rent
2 beds
$6,190
Sandwiched between two beautiful parks, the Upper West Side is one of the greenest spots in Manhattan. For that reason, it is a perennial favorite. The Upper West Side is relaxed, but never dull. There are plenty of low-key bars and restaurants to frequent along Amsterdam Avenue, and Broadway is an always-bustling commercial center. The wide, tree-lined streets still boast many mom-and-pop stores. Less posh than the Upper East Side, it is more easily accessible by public transportation, and real estate prices are just as, if not more, expensive.
Learn more about Upper West Side





































































































