$4,500
For Rent
Base rent only. For total monthly price and additional fees, see .
Rented 5/15/2025
768 ft²
$70 per ft²
3 rooms
1 bed
1 bath
Condo
- Upper West Side
Under NYC law, you can't be charged a broker fee if you didn't hire a broker.
Listed By
This home has been saved by 89 users.
Listing by Corcoran, Limited Liability Broker, 590 Madison Avenue, New York, NY 10022
Unavailable
Rented on 5/15/2025
Days on market
3 days
Last price change
No changes
About
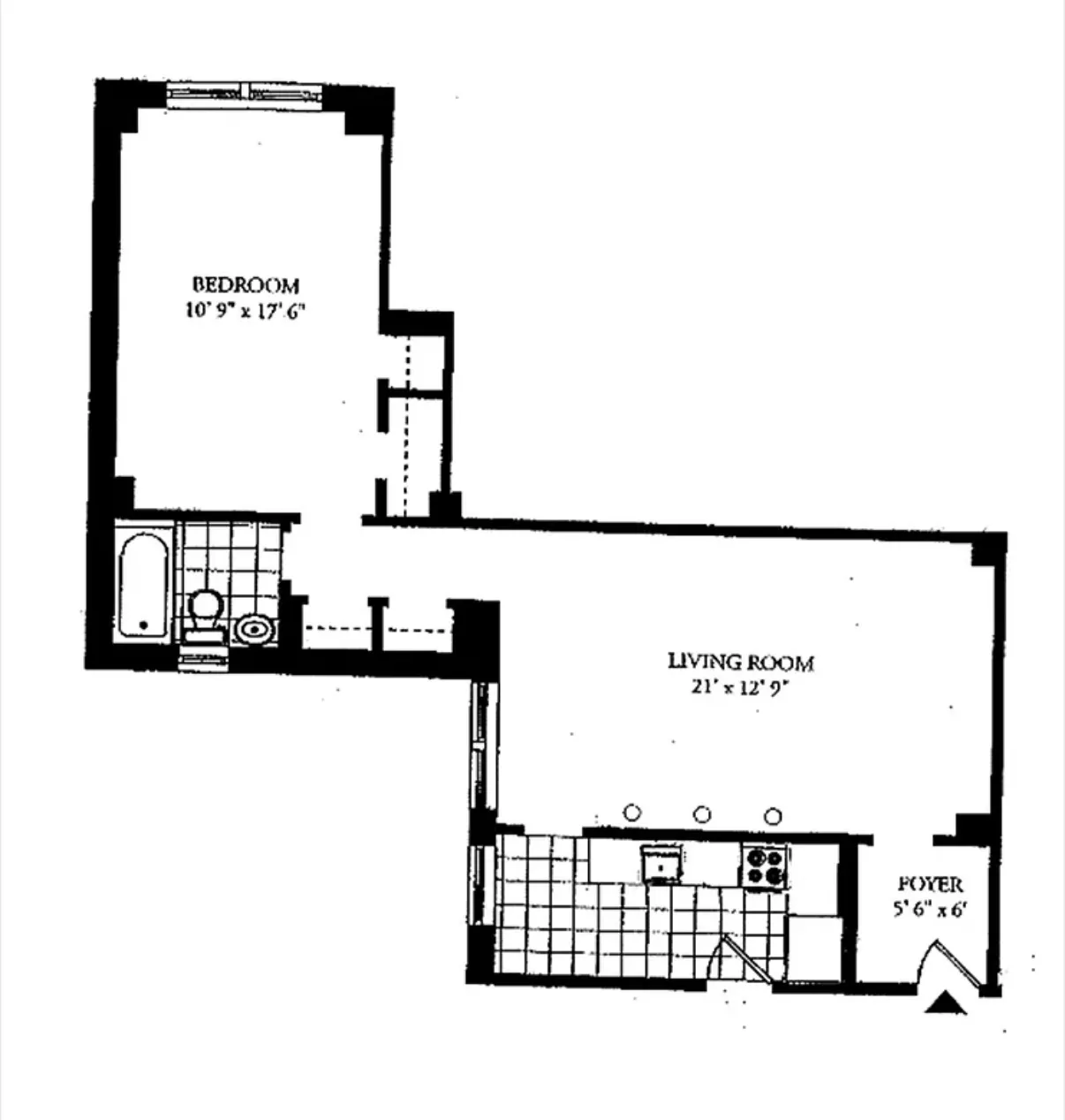
Residence 14H at The Hermitage Condominium is available July 1st. It is a spacious pre-war one bedroom home which features a renovated windowed kitchen with granite counter tops, Viking wine cooler and range, Sub-Zero refrigerator and Miele dishwasher. The bright and spacious bedroom has Northern open city views and custom closets. A windowed bathroom completes this gem.
Policies
Pets allowed
Cats and dogs allowed
Home features
View
City, Skyline
Building amenities
Services and facilities
Bike room
Doorman
Full-time
Elevator
Laundry in building
Live-in super
Wellness and recreation
No info on wellness and recreation
Shared outdoor space
No info on shared outdoor space
About the building
The Hermitage
41 West 72nd Street, New York, NY 10023
125 units
16 stories
1928 built
Property history
Prices shown are base rent only. For total monthly price and additional fees, see .
| Date | Base rent | Event |
|---|---|---|
5/15/2025 | $4,500 | Rented by Corcoran |
5/12/2025 | $4,500 | Listed by Corcoran |
5/9/2021 | $3,500 | |
3/1/2021 | $3,500 | Price decreased by 4% |
12/8/2020 | $3,640 |
Past listing photos
Sign in to take a closer look at how this home compares to similar homes.
Explore Upper West Side
Transit
| Location | Distance |
|---|---|
BCat 72nd St | 0.12 miles |
123at 72nd St | 0.22 miles |
BCat 81st St–Museum of Natural History | 0.32 miles |
1at 66th St–Lincoln Center | 0.33 miles |
1at 79th St | 0.44 miles |
About Upper West Side
Rental prices shown are base rent before any fees. Visit listings for cost and fees breakdown.
SalesMedian asking price
1 bed
$785K
RentalsMedian asking base rent
1 bed
$4,500
Sandwiched between two beautiful parks, the Upper West Side is one of the greenest spots in Manhattan. For that reason, it is a perennial favorite. The Upper West Side is relaxed, but never dull. There are plenty of low-key bars and restaurants to frequent along Amsterdam Avenue, and Broadway is an always-bustling commercial center. The wide, tree-lined streets still boast many mom-and-pop stores. Less posh than the Upper East Side, it is more easily accessible by public transportation, and real estate prices are just as, if not more, expensive.
Learn more about Upper West SideSimilar homes
Prices shown are base rent only and don't include any fees. Visit each listing to see a complete cost breakdown.
Similar Homes looks at ad spend and other factors like location, price, and number of beds and baths.

















































































































































































