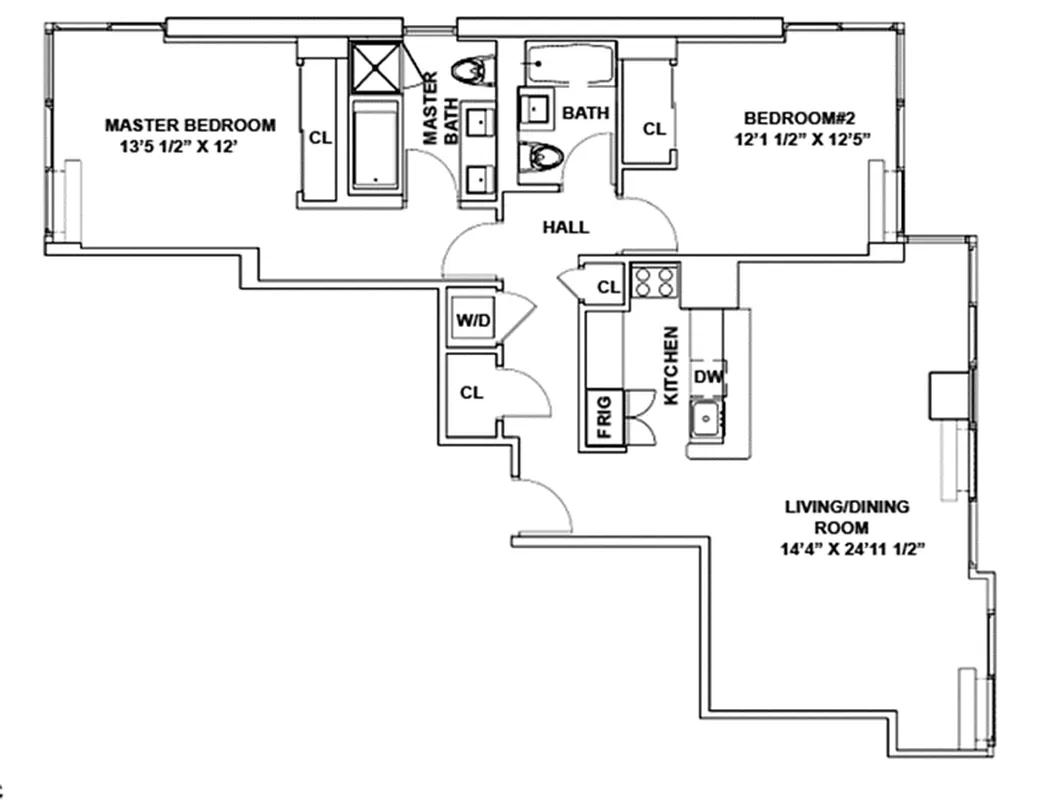
1,253 ft²
$1,516 per ft²
4 rooms
2 beds
2 baths
Condo
- Lincoln Square
recorded sale
Sold on 5/29/2014
Verified by closing records
Last listed for $1,900,000
Seller's agent
This home has been saved by 21 users.
Listing by Douglas Elliman, Limited Liability Broker, 1995 Broadway, New York, NY 10023 | Brokerage Listing ID: 1763512
Common charges
$1,269/mo
Estimated payment
$12,319/mo
Taxes
$846/mo
Tax abatement
No info
About
Seller’s agent
Buyer’s agent
description
First time on the market and RARELY available E line. Located on one of the highest floors at the Hudson Condominium, is this oversized split two bedroom home with open South, East and North Exposures. This 1253sqft corner home has been meticulously maintained and even upgraded with custom blinds and lighting. Apartment 19E is not to be missed in a thriving new neighborhood, so please come see for yourself on Sunday from 1-3pm.
Policies
Pets allowed
Cats and dogs allowed
Home features
No info on home features
Building amenities
Services and facilities
Doorman
Full-time
Elevator
Live-in super
Wellness and recreation
Gym
Shared outdoor space
No info on shared outdoor space
About the building
The Hudson Condominiums
225 West 60th Street, New York, NY 10023
79 units
19 stories
2007 built
For sale
1 available units for saleFor rent
1 available units for rentDocuments and permits
View documents and permitsProperty history
- Price Change: No changes
- Days on market: 15 days
| Date | Price | Event |
|---|---|---|
5/29/2014 | $1,900,000 | Sold by Douglas Elliman |
5/30/2014 | $1,900,000 | No longer available |
4/10/2014 | $1,900,000 | In contract |
3/26/2014 | $1,900,000 | Listed by Douglas Elliman |
3/20/2007 | $1,522,283 |
Past listing photos
Sign in to take a closer look at how this home compares to similar homes.
Explore Lincoln Square
Transit
| Location | Distance |
|---|---|
1at 66th St–Lincoln Center | 0.33 miles |
ABCD1at 59th St–Columbus Circle | 0.34 miles |
123at 72nd St | 0.58 miles |
NRWat 57th St–7th Av | 0.59 miles |
BCat 72nd St | 0.62 miles |
About Lincoln Square
Rental prices shown are base rent before any fees. Visit listings for cost and fees breakdown.
SalesMedian asking price
2 beds
$2.29M
RentalsMedian asking base rent
2 beds
$9,615
Named after and defined by the Lincoln Center for the Performing Arts, Lincoln Square is home to the New York Philharmonic, the New York City Ballet and the Metropolitan Opera, among many other cultural institutions. The neighborhood blends the prewar architecture and and style of the Upper West Side with modern, tall residential buildings. Great subway access at Columbus Circle and proximity to Midtown make this neighborhood popular with those looking to be in the center of it all.
Learn more about Lincoln Square









































































































