$8,500
for rent
Base rent only. For total monthly price and additional fees, see .
Rented 7/1/2023
1,100 ft²
$92 per ft²
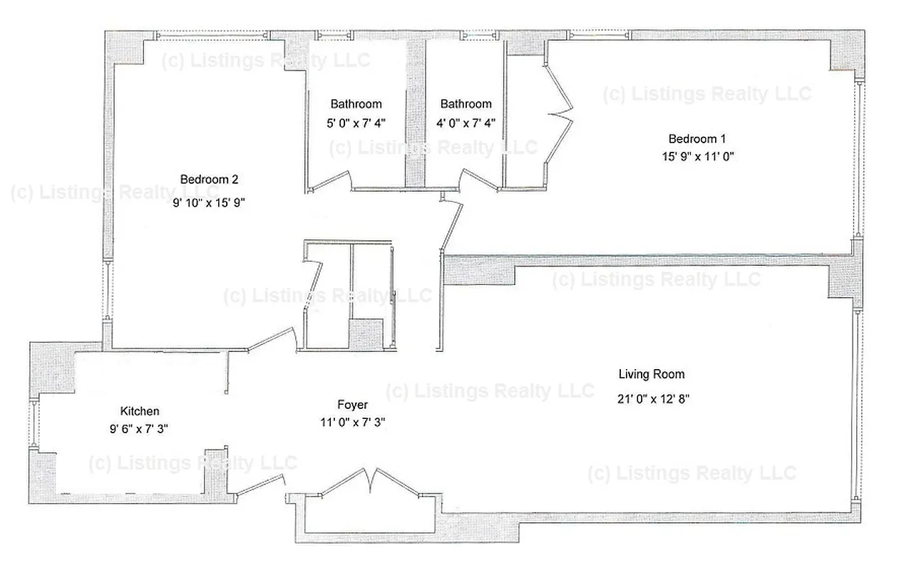
4 rooms
2 beds
2 baths
Co-op
- Greenwich Village
Under NYC law, you can't be charged a broker fee if you didn't hire a broker.
Listed by
This home has been saved by 6 users.
Listing by Listings Realty, LLC, Real Estate Principal Office, 224 West 35th Street, New York, NY 10001
Unavailable
Rented on 7/1/2023
Days on market
1 day
Last price change
No changes
About
Rarely available SPONSOR UNIT (no board approval) in Luxury Post-War 24hr Doorman Highrise! True 2 bedroom / 2 full bath in prime Greenwich Village location! * Renovated Kitchen Floors * High-End Stainless Steel Appliances * Over-Sized 36" Range * Dishwasher * Triple exposures: South, East and North * City Views * Card Access Laundry Room * Children's Playroom * Common Roof Deck * Very unique co-op...
Policies
Pets allowed
Cats and dogs allowed
Home features
Dishwasher
Hardwood floors
View
City, Skyline
Building amenities
Services and facilities
Bike room
Doorman
Full-time
Elevator
Laundry in building
Live-in super
Storage space
Wellness and recreation
No info on wellness and recreation
Shared outdoor space
Roof deck
About the building
The Lawrence House
79 West 12th Street, New York, NY 10011
107 units
16 stories
1960 built
Property history
Prices shown are base rent only. For total monthly price and additional fees, see .
| Date | Base rent | Event |
|---|---|---|
7/1/2023 | $8,500 | Rented by Listings Realty, LLC |
6/30/2023 | $8,500 | Listed by Listings Realty, LLC |
10/2/2020 | $5,000 | |
9/24/2020 | $5,000 | |
9/13/2020 | $5,000 | Price decreased by 17% |
Past listing photos
Sign in to take a closer look at how this home compares to similar homes.
Explore Greenwich Village
Transit
| Location | Distance |
|---|---|
FLM123at 6th Av | under 500 feet |
FLM123at 14th St | under 500 feet |
PATHat 14th Street Station | under 500 feet |
PATHat 9th Street Station | 0.15 miles |
ABCDEFMat West 4th St | 0.23 miles |
About Greenwich Village
Rental prices shown are base rent before any fees. Visit listings for cost and fees breakdown.
SalesMedian asking price
2 beds
$2.6M
RentalsMedian asking base rent
2 beds
$7,397
Greenwich Village perfectly combines a bit of the East Village's glorified grunge with a bit of the West Village's tony charm. The birthplace of the beatnik movement and home to NYU, the neighborhood offers something for all its eclectic residents. You'll find new restaurants, indie movie theaters and comedy clubs around the corner from quiet blocks full of big brownstones and well-kept window boxes. Whether it's a 24-hour falafel joint, a dark downstairs bar, or upscale furniture shops, the neighborhood appeals to anyone who relishes the culture, history and activity of the city.
Learn more about Greenwich VillageSimilar homes
Prices shown are base rent only and don't include any fees. Visit each listing to see a complete cost breakdown.
Similar Homes looks at ad spend and other factors like location, price, and number of beds and baths.




































































































