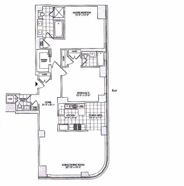
1,658 ft²
$1,087 per ft²
4 rooms
2 beds
2.5 baths
Condo
- Carnegie Hill
Sponsor unit
Sponsor unitA unit being sold for the first time. It’s typically owned by the building. For condos, this is often the developer. For co-ops, this is often the building’s original owner before it went co-op.
recorded sale
Sold on 3/31/2009
Verified by closing records
Last listed for $1,995,000
Seller's agent
Douglas Elliman
This home has been saved by 4 users.
Listing by Douglas Elliman, Limited Liability Broker | MLS #: 13545
Common charges
$1,572/mo
Estimated payment
Taxes
$476/mo
Tax abatement
No info
About
Seller’s agent
Buyer’s agent
description
PRISTINE PERFECTION! Classic residence by Philip Johnson - Master of light, glass and space. 1658 square feet. High floor expansive 2 bedrooms, 2.5 bathrooms, exceptionally large living/dining room. House Beautiful windowed kitchen with Viking stainless steel appliances and separate spacious area for in-kitchen dining. Spa-like Italian marble baths. Merbau wood plank floors.
Policies
Pets allowed
Cats and dogs allowed
Home features
Washer/dryer
Building amenities
Services and facilities
Bike room
Concierge
Doorman
Full-time
Elevator
Laundry in building
Live-in super
Wellness and recreation
Children's playroom
Gym
Shared outdoor space
No info on shared outdoor space
About the building
The Metropolitan
181 East 90th Street, New York, NY 10128
84 units
30 stories
2004 built
For sale
2 available units for saleFor rent
1 available units for rentDocuments and permits
View documents and permitsProperty history
- Price Change: ↓ $205,000 (-9.3%) on 12/27/08
- Days on market: 245 daysThis is the number of days the listing has been on StreetEasy.
| Date | Price | Event |
|---|---|---|
3/31/2009 | $1,803,560 | Sold by Douglas Elliman |
4/1/2009 | $1,995,000 | No longer available |
2/27/2009 | $1,995,000 | In contract |
1/6/2009 | $1,995,000 | Listed by Douglas Elliman |
1/1/2009 | $1,995,000 | No longer available |
Sign in to take a closer look at how this home compares to similar homes.
Explore Carnegie Hill
Transit
| Location | Distance |
|---|---|
456at 86th St | 0.21 miles |
Qat 96th St | 0.23 miles |
Qat 86th St | 0.27 miles |
6at 96th St | 0.28 miles |
6at 103rd St | 0.64 miles |































































































































