$875,000
for sale
In contract 4/13/2026
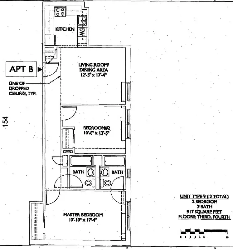
917 ft²
$954 per ft²
4 rooms
2 beds
2 baths
Condo
- Sunnyside
Resale
This home has been saved by 14 users.
Listing by The Agency, Real Estate Principal Office, 88 University Place, New York, NY 10003
Common charges
$724/mo
Estimated payment
$6,307/mo
Legal disclaimerAll calculations are estimates provided by StreetEasy for informational purposes only. Actual amounts or financing terms may vary. Please contact your mortgage provider for specifics.Taxes
$1,086/mo
Tax abatement
No info
About
Seller’s agent
Description
***2 bed/2 bath condo in the heart of Sunnyside***
***First two pages are virtually staged.
Welcome home to this large 2 bed/2 bath condo in one of the most desirable buildings in Sunnyside!
Beautifully positioned at the back of the building, this home greets you with peaceful serenity and privacy.
The galley kitchen offers a full range of stainless-steel appliances including a dishwasher, solid honey maple-stained wood cabinets and Wilsonart Graphite Nebula counter tops.
Policies
Sorry, policy info isn’t available right now. Check back later.
Home features
Central air
Dishwasher
Hardwood floors
Building amenities
Services and facilities
Bike room
Laundry in building
Live-in super
Parking
Garage
Storage space
Locker/cage
Wellness and recreation
No info on wellness and recreation
Shared outdoor space
Courtyard
About the building
The Phoenix Condominium
41-02 Queens Boulevard, Sunnyside, NY 11104
31 units
6 stories
2006 built
For sale
2 available units for saleFor rent
0 available units for rentDocuments and permits
View documents and permitsProperty history
- Price change: No changes
- Days on market: 26 daysThis is the number of days the listing has been on StreetEasy.
| Date | Price | Event |
|---|---|---|
4/13/2026 | $875,000 | In contract |
3/18/2026 | $875,000 | Listed by The Agency |
3/31/2021 | $705,000 | |
1/25/2021 | $740,000 | |
12/5/2020 | $740,000 | Price decreased by 5% |
Past listing photos
Sign in to take a closer look at how this home compares to similar homes.
Explore Sunnyside
Transit
| Location | Distance |
|---|---|
7at Lowery St–40th St | under 500 feet |
7at Bliss St–46th St | 0.22 miles |
7at Rawson St–33rd St | 0.42 miles |
7at Lincoln Av–52nd St | 0.53 miles |
MRat 36th St | 0.64 miles |
About Sunnyside
Rental prices shown are base rent before any fees. Visit listings for cost and fees breakdown.
SalesMedian asking price
2 beds
$625K
RentalsMedian asking base rent
2 beds
$3,200
Back in the 1920s, when Queens was mostly farmland, developers took advantage of the open space and quick commutes to Manhattan this area offered and built one of New York City's first planned communities. What resulted was a neighborhood full of charming homes with attached gardens that later become known as the Sunnyside Gardens Historic District. As the neighborhood expanded outside the planned borders, it nonetheless maintained a strong residential atmosphere.
Nowadays, most of the available homes are in the ubiquitous prewar brick buildings that dot the streets. These neatly kept buildings command reasonable rents and offer practical floor plans. Although Sunnyside is short on public spaces, lacking a major park or cultural venue, residents have adapted by turning the neighborhood's many restaurants and pubs into hangout spots.






















































































