5,600 ft²
$8,571 per ft²
15 rooms
5 beds
6 baths
Co-op
- Lincoln Square
reported sale
Sold on 4/16/2014
Not yet verified by closing records
Seller's agents
This home has been saved by 63 users.
Listing by Corcoran, Limited Liability Broker, 590 Madison Avenue, New York, NY 10022 | Brokerage Listing ID: 2897265
Maintenance fees
$19,114/mo
Estimated payment
$252,710/mo
Legal disclaimerAll calculations are estimates provided by StreetEasy for informational purposes only. Actual amounts or financing terms may vary. Please contact your mortgage provider for specifics.Taxes
Included in maintenance fees
Tax abatement
No info
About
Seller’s agent
description
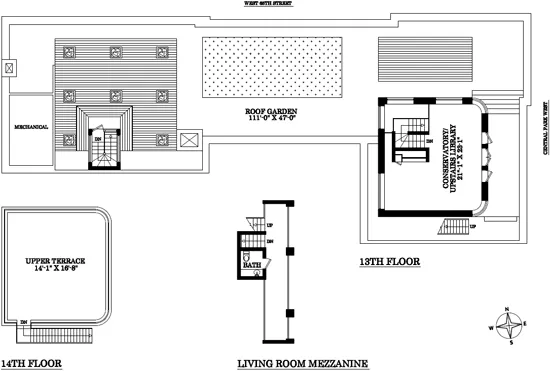
CPW- Penthouse Perfection on the Park Located atop the legendary Prasada, this spectacular 12-room penthouse with breathtaking views has two terraces and 50 feet fronting Central Park. Originally 15 rooms, this sprawling home spans approximately 5,600 square feet, with four exposures and has approximately 3,526 square feet of outdoor space.
Policies
Pets allowed
Cats and dogs allowed
Home features
Fireplace
Private outdoor space
Terrace
Washer/dryer
Building amenities
Services and facilities
Doorman
Full-time
Elevator
Laundry in building
Live-in super
Wellness and recreation
Gym
Shared outdoor space
No info on shared outdoor space
About the building
The Prasada
50 Central Park West, New York, NY 10023
40 units
12 stories
1907 built
For sale
2 available units for saleFor rent
0 available units for rentDocuments and permits
View documents and permitsProperty history
- Price Change: No changes
- Days on market: 182 daysThis is the number of days the listing has been on StreetEasy.
| Date | Price | Event |
|---|---|---|
4/17/2014 | $48,000,000 | Sold by Corcoran |
4/16/2014 | $48,000,000 | No longer available |
10/16/2013 | $48,000,000 | Listed by Corcoran |
4/15/2014 | $48,000,000 | |
4/14/2014 | $48,000,000 |
Past listing photos
Sign in to take a closer look at how this home compares to similar homes.
Explore Lincoln Square
Transit
| Location | Distance |
|---|---|
1at 66th St–Lincoln Center | 0.17 miles |
ABCD1at 59th St–Columbus Circle | 0.21 miles |
BCat 72nd St | 0.26 miles |
NRWat 57th St–7th Av | 0.41 miles |
123at 72nd St | 0.49 miles |
About Lincoln Square
Rental prices shown are base rent before any fees. Visit listings for cost and fees breakdown.
SalesMedian asking price
5 beds
$10.6M
RentalsMedian asking base rent
5 beds
$37,247
Named after and defined by the Lincoln Center for the Performing Arts, Lincoln Square is home to the New York Philharmonic, the New York City Ballet and the Metropolitan Opera, among many other cultural institutions. The neighborhood blends the prewar architecture and and style of the Upper West Side with modern, tall residential buildings. Great subway access at Columbus Circle and proximity to Midtown make this neighborhood popular with those looking to be in the center of it all.
Learn more about Lincoln Square




























































































































































































































