- ft²
1 room
Studio
1 bath
Condo
- Upper West Side
Resale
recorded sale
Sold on 2/2/2026
Verified by closing records
Last listed for $650,000
Seller's agent
This home has been saved by 54 users.
Listing by Compass, Corporate Broker, 2150 Broadway, New York, NY 10023
Common charges
$668/mo
Estimated payment
$4,828/mo
Legal disclaimerAll calculations are estimates provided by StreetEasy for informational purposes only. Actual amounts or financing terms may vary. Please contact your mortgage provider for specifics.Taxes
$570/mo
Tax abatement
No info
About
Sellerâs agent
Buyerâs agent
description
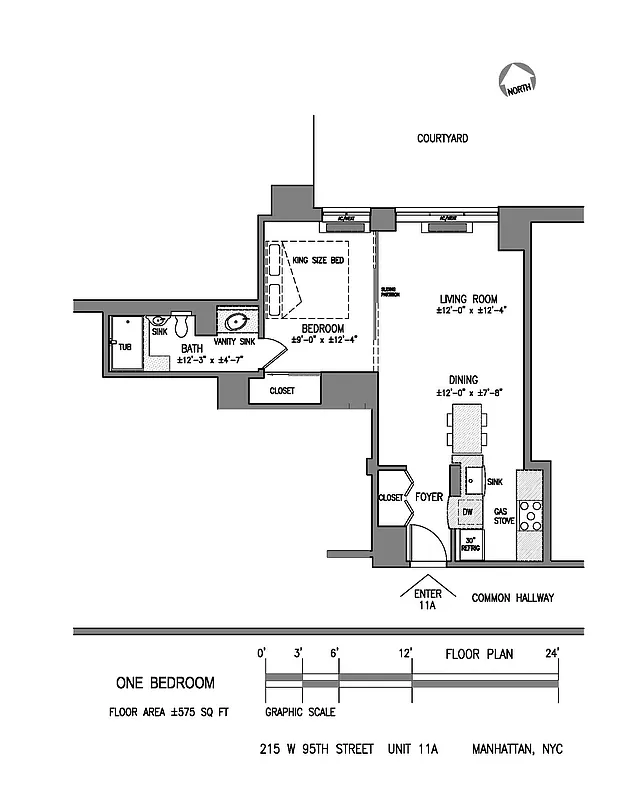
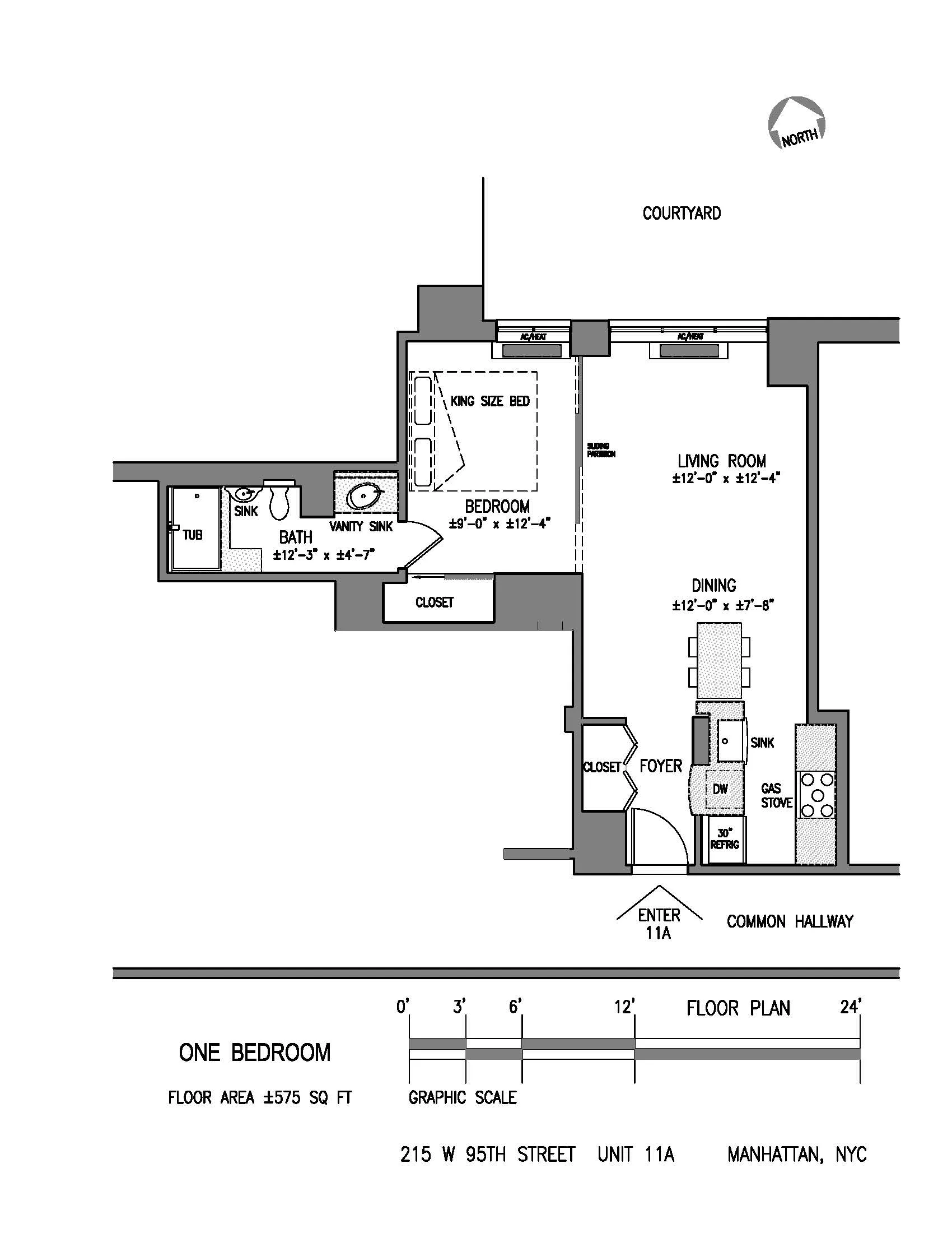
Originally configured as a one bedroom, 11A has been completely renovated as an alcove studio with an open kitchen, comfortable living and dining area and ample closet space. The kitchen features all top of the line appliances and ample cabinetry. The stone bathroom is replete with a rain showerhead and an avocado sink.
Policies
Pets allowed
Cats and dogs allowed
Home features
Dishwasher
Building amenities
Services and facilities
Bike room
Doorman
Full-time
Elevator
Laundry in building
Live-in super
Parking
Wellness and recreation
Gym
Shared outdoor space
Roof deck
About the building
The Princeton House
215 West 95th Street, New York, NY 10025
212 units
16 stories
1986 built
For sale
0 available units for saleFor rent
0 available units for rentDocuments and permits
View documents and permitsProperty history
- Price Change: â $38,000 (-5.5%) on 10/27/25
- Days on market: 136 daysThis is the number of days the listing has been on StreetEasy.
| Date | Price | Event |
|---|---|---|
2/2/2026 | $650,000 | Sold by Compass |
12/5/2025 | $650,000 | In contract |
10/27/2025 | $650,000 | Price decreased by 6% |
9/20/2025 | $688,000 | Price decreased by 7% |
7/22/2025 | $740,000 | Listed by Compass |
Past listing photos
Sign in to take a closer look at how this home compares to similar homes.
Explore Upper West Side
Transit
| Location | Distance |
|---|---|
123at 96th St | under 500 feet |
BCat 96th St | 0.39 miles |
1at 103rd St | 0.4 miles |
1at 86th St | 0.42 miles |
BCat 86th St | 0.53 miles |
About Upper West Side
Rental prices shown are base rent before any fees. Visit listings for cost and fees breakdown.
SalesMedian asking price
Studio
$499K
RentalsMedian asking base rent
Studio
$3,250
Sandwiched between two beautiful parks, the Upper West Side is one of the greenest spots in Manhattan. For that reason, it is a perennial favorite. The Upper West Side is relaxed, but never dull. There are plenty of low-key bars and restaurants to frequent along Amsterdam Avenue, and Broadway is an always-bustling commercial center. The wide, tree-lined streets still boast many mom-and-pop stores. Less posh than the Upper East Side, it is more easily accessible by public transportation, and real estate prices are just as, if not more, expensive.
Learn more about Upper West Side
















































































































































