View this home virtually
$13,500
For Rent
Base rent only. For total monthly price and additional fees, see .
Rented 12/7/2024
1,400 ft²
$115 per ft²
5 rooms
2 beds
3 baths
Condo
- West Village
Under NYC law, you can't be charged a broker fee if you didn't hire a broker.
Listed By
This home has been saved by 10 users.
Listing by La Seven Inc., Corporate Broker, 21 West 58th Street, Suite, New York, NY 10019
Unavailable
Rented on 12/7/2024
Days on market
10 days
Last price change
No changes
About
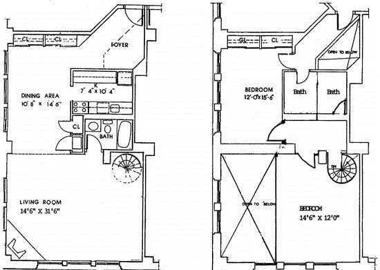
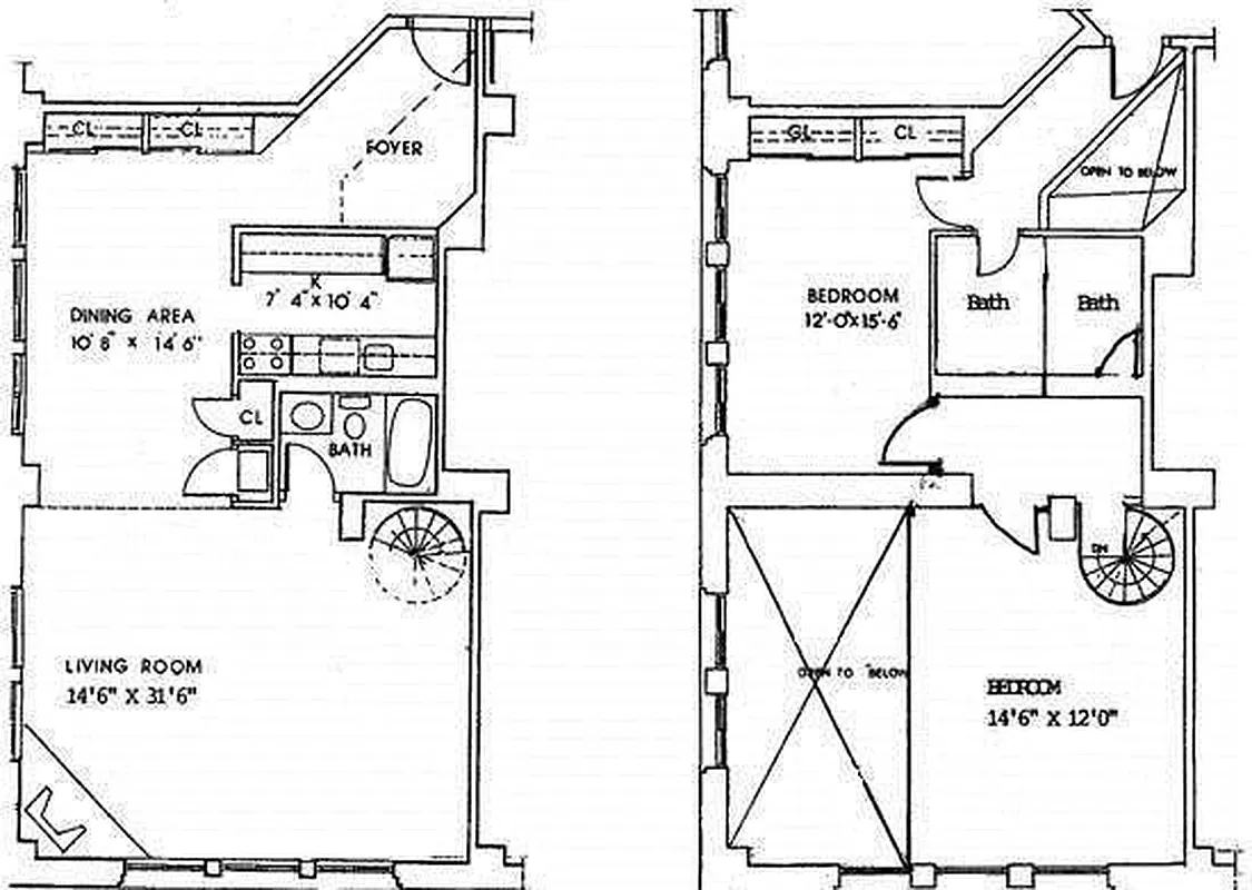
Fabulous Penthouse Duplex 2 bedroom / 3 full bathroom apartment at The Printing House.
Spacious and very bright apartment with breathtaking views that faces south and east; The first floor living room through a large hallway entrance offers high ceilings, oversized windows extending the great room and a decorative fireplace, dining area is in front of the kitchen with SS appliances, and a full 3rd...
Policies
Pets allowed
Cats and dogs allowed
Home features
Dishwasher
Fireplace
Decorative
Hardwood floors
View
City, Park
Building amenities
Services and facilities
Concierge
Doorman
Full-time
Elevator
Laundry in building
Live-in super
Package room
Wheelchair access
Wellness and recreation
Gym
Shared outdoor space
No info on shared outdoor space
About the building
The Printing House
421 Hudson Street, New York, NY 10014
155 units
- stories
1920 built
Property history
Prices shown are base rent only. For total monthly price and additional fees, see .
| Date | Base rent | Event |
|---|---|---|
12/7/2024 | $13,500 | Rented by La Seven Inc. |
11/27/2024 | $13,500 | Listed by La Seven Inc. |
2/18/2021 | $7,500 | |
1/28/2021 | $7,500 | Price decreased by 4% |
1/21/2021 | $7,800 |
Past listing photos
Sign in to take a closer look at how this home compares to similar homes.
Explore West Village
Transit
| Location | Distance |
|---|---|
1at Houston St | 0.13 miles |
PATHat Christopher Street Station | 0.22 miles |
CEat Spring St | 0.31 miles |
ABCDEFMat West 4th St | 0.31 miles |
1at Christopher St–Sheridan Sq | 0.33 miles |
About West Village
Rental prices shown are base rent before any fees. Visit listings for cost and fees breakdown.
SalesMedian asking price
2 beds
$2.6M
RentalsMedian asking base rent
2 beds
$6,570
Picture a romantic comedy set in New York City: The heroine invariably lives in a cozy walk-up on a cobblestone street in a neighborhood with cute boutiques and trendy cafes on every corner. This movie is set in the West Village. In reality, the West Village is just as picturesque: The neighborhood is tucked between Greenwich Village and the Hudson River and is one of the quietest and most sophisticated pockets of Downtown Manhattan. Primarily residential, with a distinct lack of office buildings, the leafy, off-the-grid streets are peaceful during the day but get livelier at night. That's when well-heeled residents, fashionistas, and literati can all be found mingling over oysters at the area's many low-lit cocktail bars.
Learn more about West VillageSimilar homes
Prices shown are base rent only and don't include any fees. Visit each listing to see a complete cost breakdown.
Similar Homes looks at ad spend and other factors like location, price, and number of beds and baths.






































































































































