800 ft²
$1,518 per ft²
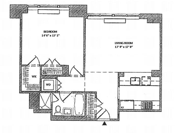
3 rooms
1 bed
1 bath
Condo
- Lincoln Square
Resale
recorded sale
Sold on 7/31/2024
Verified by closing records
Last listed for $1,225,000
Seller's agents
This home has been saved by 33 users.
Listing by Douglas Elliman, Limited Liability Broker, 575 Madison Avenue, New York, NY 10022 | Brokerage Listing ID: 22922724
Common charges
$1,050/mo
Estimated payment
Taxes
$1,439/mo
Tax abatement
No info
About
Seller’s agent
Buyer’s agent
description
6H is a serene, spacious and tastefully renovated one bedroom at the highly desirable Rushmore Condominium. Nearly 25’ of Southeast-facing floor-to-ceiling windows capture an abundance of sunlight and provide a panoramic view over manicured West End Park. The apartment features high ceilings, pass-through kitchen, in-unit washer/dryer, and custom-designed built-ins.
Policies
Pets allowed
Cats and dogs allowed
Home features
Dishwasher
Hardwood floors
View
City, Park
Washer/dryer
Building amenities
Services and facilities
Bike room
Concierge
Doorman
Full-time
Elevator
Laundry in building
Live-in super
Package room
Parking
Garage
Storage space
Cold storage
Wheelchair access
Wellness and recreation
Children's playroom
Gym
Media room
Swimming pool
Shared outdoor space
Courtyard
Roof deck
About the building
The Rushmore
80 Riverside Boulevard, New York, NY 10069
267 units
43 stories
2006 built
For sale
11 available units for saleFor rent
1 available units for rentDocuments and permits
View documents and permitsProperty history
- Price Change: ↓ $25,000 (-2.0%) on 5/3/24
- Days on market: 78 daysThis is the number of days the listing has been on StreetEasy.
| Date | Price | Event |
|---|---|---|
7/31/2024 | $1,215,000 | Sold by Douglas Elliman |
5/31/2024 | $1,225,000 | In contract |
5/3/2024 | $1,225,000 | Price decreased by 2% |
3/14/2024 | $1,250,000 | Listed by Douglas Elliman |
4/18/2012 | $0 |
Past listing photos
Sign in to take a closer look at how this home compares to similar homes.
Explore Lincoln Square
Transit
| Location | Distance |
|---|---|
1at 66th St–Lincoln Center | 0.42 miles |
123at 72nd St | 0.5 miles |
ABCD1at 59th St–Columbus Circle | 0.57 miles |
BCat 72nd St | 0.69 miles |
1at 79th St | 0.8 miles |
About Lincoln Square
Rental prices shown are base rent before any fees. Visit listings for cost and fees breakdown.
SalesMedian asking price
1 bed
$950K
RentalsMedian asking base rent
1 bed
$5,300
Named after and defined by the Lincoln Center for the Performing Arts, Lincoln Square is home to the New York Philharmonic, the New York City Ballet and the Metropolitan Opera, among many other cultural institutions. The neighborhood blends the prewar architecture and and style of the Upper West Side with modern, tall residential buildings. Great subway access at Columbus Circle and proximity to Midtown make this neighborhood popular with those looking to be in the center of it all.
Learn more about Lincoln Square




















































































































































