- ft²
3 rooms
Studio
1 bath
Co-op
- Upper West Side
Resale
recorded sale
Sold on 3/25/2025
Verified by closing records
Last listed for $469,000
Seller's agents
This home has been saved by 78 users.
Listing by Brown Harris Stevens, Real Estate Principal Office, 1934 Broadway, New York, NY 10023
Maintenance fees
$1,452/mo
Estimated payment
$3,716/mo
Legal disclaimerAll calculations are estimates provided by StreetEasy for informational purposes only. Actual amounts or financing terms may vary. Please contact your mortgage provider for specifics.Taxes
Included in maintenance fees
Tax abatement
No info
About
Seller’s agent
description
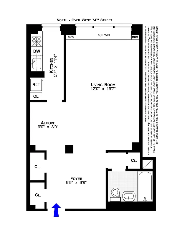
73/WEA-RSD - SPACIOUS ALCOVE STUDIO - BRIGHT & QUIET!
Gracious alcove studio offers a flexible layout featuring a large foyer, windowed kitchen, sizable living room and an interior alcove perfect for dining, home office or sleeping. This peaceful, bright home faces north with sky views over historic townhouses and side views west to Riverside Park and the Hudson River.
Policies
Co-purchase allowed
Guarantors accepted
Parents buying allowed
Pets allowed
Cats and dogs allowed
Pied-a-terre allowed
Sublets allowed
Home features
No info on home features
Building amenities
Services and facilities
Bike room
Doorman
Full-time
Elevator
Laundry in building
Live-in super
Parking
Garage
Storage space
Cold storage
Wellness and recreation
Children's playroom
Gym
Shared outdoor space
Roof deck
About the building
The Schwab House
11 Riverside Drive, New York, NY 10023
636 units
19 stories
1950 built
For sale
11 available units for saleFor rent
0 available units for rentDocuments and permits
View documents and permitsProperty history
- Price Change: No changes
- Days on market: 54 daysThis is the number of days the listing has been on StreetEasy.
| Date | Price | Event |
|---|---|---|
3/25/2025 | $0 | |
3/25/2025 | $469,000 | Sold by Brown Harris Stevens |
10/9/2024 | $469,000 | In contract |
8/16/2024 | $469,000 | Listed by Brown Harris Stevens |
9/24/2019 | $499,999 |
Past listing photos
Sign in to take a closer look at how this home compares to similar homes.
Explore Upper West Side
Transit
| Location | Distance |
|---|---|
123at 72nd St | 0.19 miles |
1at 79th St | 0.29 miles |
1at 66th St–Lincoln Center | 0.51 miles |
BCat 72nd St | 0.55 miles |
BCat 81st St–Museum of Natural History | 0.59 miles |
About Upper West Side
Rental prices shown are base rent before any fees. Visit listings for cost and fees breakdown.
SalesMedian asking price
Studio
$475K
RentalsMedian asking base rent
Studio
$3,269
Sandwiched between two beautiful parks, the Upper West Side is one of the greenest spots in Manhattan. For that reason, it is a perennial favorite. The Upper West Side is relaxed, but never dull. There are plenty of low-key bars and restaurants to frequent along Amsterdam Avenue, and Broadway is an always-bustling commercial center. The wide, tree-lined streets still boast many mom-and-pop stores. Less posh than the Upper East Side, it is more easily accessible by public transportation, and real estate prices are just as, if not more, expensive.
Learn more about Upper West Side

































































































































































































