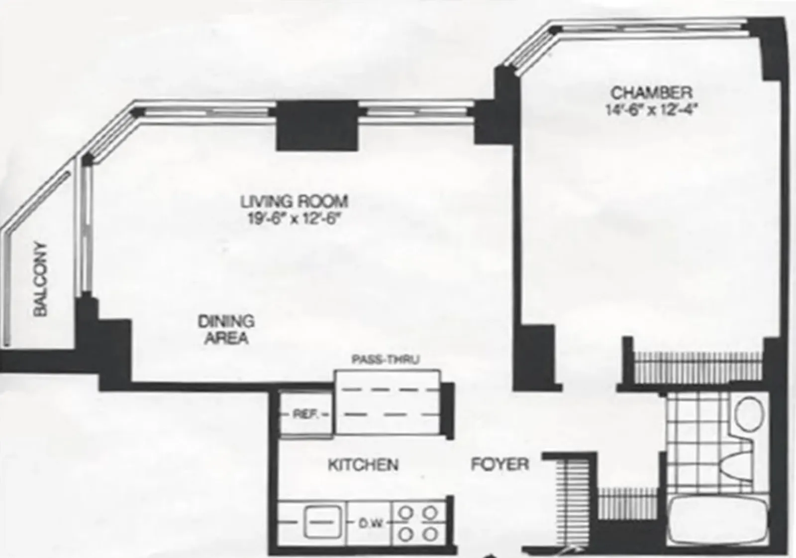
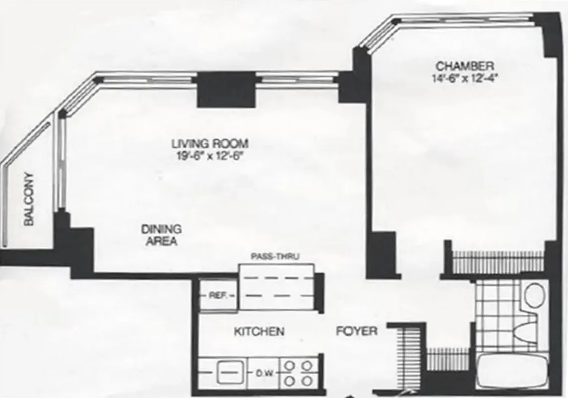
675 ft²
$1,074 per ft²
3 rooms
1 bed
1 bath
Condo
- Hell's Kitchen
Resale
recorded sale
Sold on 10/30/2025
Verified by closing records
Last listed for $750,000
Seller's agents
This home has been saved by 37 users.
Listing by Brown Harris Stevens, Real Estate Principal Office, 445 Park Avenue, New York, NY 10022
Common charges
$966/mo
Estimated payment
$5,931/mo
Legal disclaimerAll calculations are estimates provided by StreetEasy for informational purposes only. Actual amounts or financing terms may vary. Please contact your mortgage provider for specifics.Taxes
$1,043/mo
Tax abatement
No info
About
Seller’s agent
Buyer’s agent
description
Newly Renovated 1 BR with Balcony
Welcome to Residence 4G, a 675 square foot, beautifully updated one-bedroom, one-bath home designed for modern comfort and effortless style. This northwest-facing retreat features expansive windows, a private balcony, and brand new European white oak flooring in a soft sand stain-offering the perfect blend of elegance and functionality.
Policies
Pets allowed
Cats and dogs allowed
Home features
Private outdoor space
Balcony
Building amenities
Services and facilities
Bike room
Doorman
Full-time
Elevator
Laundry in building
Live-in super
Parking
Wellness and recreation
Gym
Swimming pool
Shared outdoor space
No info on shared outdoor space
About the building
The Strand
500 West 43rd Street, New York, NY 10036
311 units
41 stories
1988 built
For sale
6 available units for saleFor rent
1 available units for rentDocuments and permits
View documents and permitsProperty history
- Price Change: No changes
- Days on market: 31 daysThis is the number of days the listing has been on StreetEasy.
| Date | Price | Event |
|---|---|---|
10/30/2025 | $725,000 | Sold by Brown Harris Stevens |
8/8/2025 | $750,000 | In contract |
7/8/2025 | $750,000 | Listed by Brown Harris Stevens |
Past listing photos
Sign in to take a closer look at how this home compares to similar homes.
Explore Hell's Kitchen
Transit
| Location | Distance |
|---|---|
ACENQRWS1237at Times Square–42nd St | 0.36 miles |
Ferryat W 39th Street Ferry Landing | 0.39 miles |
7at 34 St Hudson Yards | 0.46 miles |
CEat 50th St | 0.47 miles |
123ACEat 34th St–Penn Station | 0.51 miles |




















































































































































































































































