$9,450
For Rent
Base rent only. For total monthly price and additional fees, see .
No longer available 4/28/2025
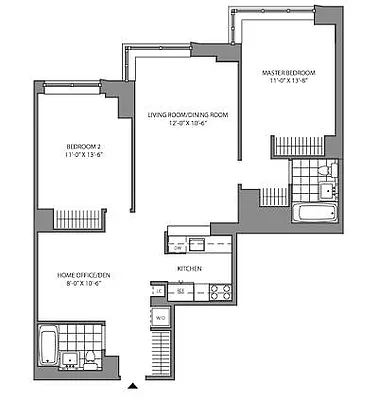
1,197 ft²
$94 per ft²
5 rooms
2 beds
2 baths
Rental unit
- Battery Park City
Under NYC law, you can't be charged a broker fee if you didn't hire a broker.
Listed By
The Albanese Organization
This home has been saved by 7 users.
Listing by The Albanese Organization | Brokerage Listing ID: 95414973
Unavailable
No longer available on 4/28/2025
Days on market
3 days
Last price change
No changes
About
Experience luxury living at its finest at Apartment 8G in The Verdesian, located in the heart of Battery Park City in Lower Manhattan. This two-bedroom, two-bathroom apartment boasts a spacious layout with a den that can easily be converted into a home office or extra bedroom. The western exposure provides breathtaking views of the Hudson River and the city skyline.
Policies
Pets allowed
Home features
Dishwasher
View
Water
Washer/dryer
Building amenities
Services and facilities
Bike room
Concierge
Doorman
Elevator
Laundry in building
Live-in super
Parking
Storage space
Wellness and recreation
Children's playroom
Gym
Shared outdoor space
Garden
Roof deck
About the building
The Verdesian
211 North End Avenue, New York, NY 10282
241 units
24 stories
2006 built
Property history
Prices shown are base rent only. For total monthly price and additional fees, see .
| Date | Base rent | Event |
|---|---|---|
4/28/2025 | $9,450 | No longer available |
4/25/2025 | $9,450 | Listed by The Albanese Organization |
6/9/2023 | $8,569 | |
5/10/2023 | $8,569 | |
8/3/2022 | $6,995 |
Past listing photos
Sign in to take a closer look at how this home compares to similar homes.
Explore Battery Park City
Transit
| Location | Distance |
|---|---|
Ferryat World Financial Center Ferry Landing | 0.12 miles |
123at Chambers St | 0.32 miles |
1at WTC Cortlandt | 0.36 miles |
Eat World Trade Center | 0.37 miles |
ACE23at Chambers St | 0.38 miles |
About Battery Park City
Rental prices shown are base rent before any fees. Visit listings for cost and fees breakdown.
SalesMedian asking price
2 beds
$1.99M
RentalsMedian asking base rent
2 beds
$8,350
Despite its proximity to the Financial District, Battery Park City feels removed from the hustle and bustle of Lower Manhattan. Residents embrace the neighborhood's peaceful environment, and can often be found running, biking, and strolling along its waterfront esplanade.
Although the neighborhood gets busy at lunchtime and happy hour, the streets are quiet at night. This area takes on an almost-suburban feel on the weekends, as families come out to ride bikes, picnic by the river, and cheer for little league games.
Similar homes
Prices shown are base rent only and don't include any fees. Visit each listing to see a complete cost breakdown.
Similar Homes looks at ad spend and other factors like location, price, and number of beds and baths.







































































































































