$3,000
For Rent
Base rent only. For total monthly price and additional fees, see .
Delisted 6/13/2025
336 ft²
$107 per ft²
2 rooms
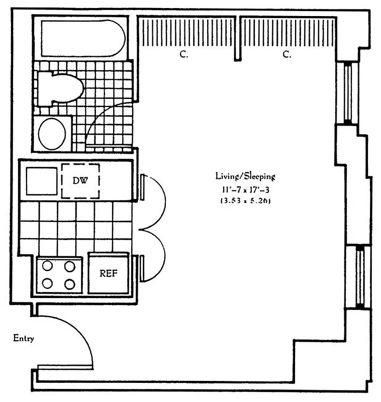
Studio
1 bath
Condo
- Central Park South
Under NYC law, you can't be charged a broker fee if you didn't hire a broker.
Listed By
This home has been saved by 30 users.
Listing by Keller Williams NYC, Limited Liability Broker, 360 Madison Avenue, New York, NY 10017
Unavailable
Delisted on 6/13/2025
Days on market
7 days
Last price change
No changes
About
Charming studio apartment in the premiere Trump Parc Condominium. The apartment features an Eastern exposure, parquet flooring, new kitchen appliances and a marble bath. Perfect for a residence or pied-a-terre!
This apartment is being offered furnished or unfurnished.
Located in one of New York City's most iconic addresses, Trump Parc offers white-glove service with a 24-hour doorman/concierge, garage, valet parking, and a live-in Resident Manager.
Policies
Sorry, policy info isn’t available right now. Check back later.
Home features
Dishwasher
Furnished
Hardwood floors
Building amenities
Services and facilities
Concierge
Doorman
Full-time
Elevator
Laundry in building
Live-in super
Parking
Garage
Wellness and recreation
No info on wellness and recreation
Shared outdoor space
No info on shared outdoor space
About the building
Trump Parc
106 Central Park South, New York, NY 10019
414 units
37 stories
1930 built
Property history
Prices shown are base rent only. For total monthly price and additional fees, see .
| Date | Base rent | Event |
|---|---|---|
6/13/2025 | $3,000 | Delisted by Keller Williams NYC |
6/6/2025 | $3,000 | Listed by Keller Williams NYC |
8/14/2012 | $2,000 | |
7/29/2012 | $2,000 | Price decreased by 9% |
5/30/2012 | $2,200 |
Sign in to take a closer look at how this home compares to similar homes.
Explore Central Park South
Transit
| Location | Distance |
|---|---|
Fat 57th St | under 500 feet |
NRat 59th St | 0.15 miles |
NRWat 57th St–7th Av | 0.15 miles |
ABCD1at 59th St–Columbus Circle | 0.3 miles |
BDEat 7th Av | 0.31 miles |
Similar homes
Prices shown are base rent only and don't include any fees. Visit each listing to see a complete cost breakdown.
Similar Homes looks at ad spend and other factors like location, price, and number of beds and baths.























































