570 ft²
$1,333 per ft²
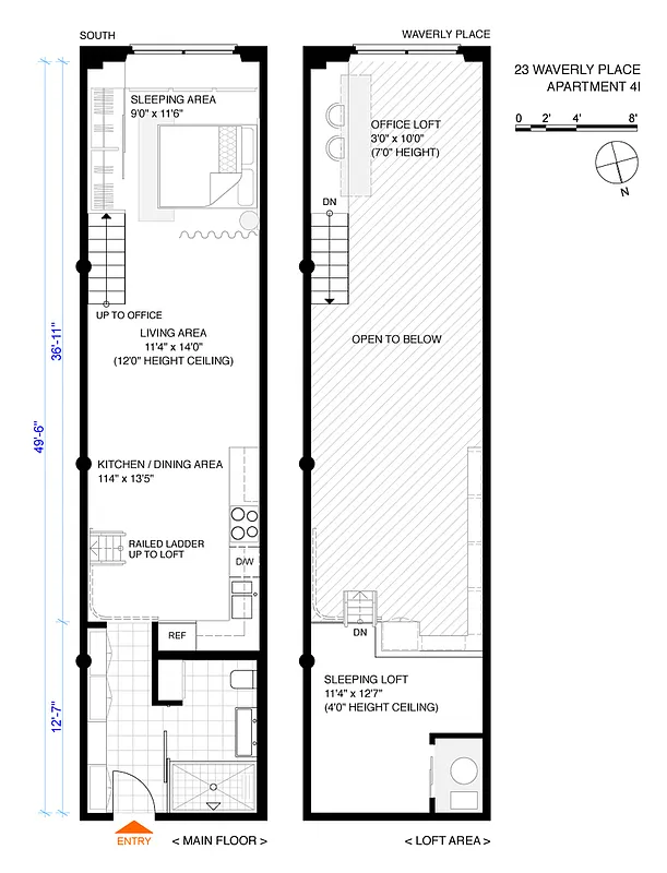
3 rooms
1 bed
1 bath
Co-op
- Greenwich Village
recorded sale
Sold on 4/19/2016
Verified by closing records
Last listed for $775,000
Seller's agents
Corcoran
This home has been saved by 107 users.
Listing by Corcoran, Limited Liability Broker | Brokerage Listing ID: 3630537
Maintenance fees
$1,199/mo
Estimated payment
$5,220/mo
Legal disclaimerAll calculations are estimates provided by StreetEasy for informational purposes only. Actual amounts or financing terms may vary. Please contact your mortgage provider for specifics.Taxes
Included in maintenance fees
Tax abatement
No info
About
Seller’s agent
Buyer’s agent
description
This open One Bedroom loft is sleek and fabulous. Relax or entertain in a meticulously designed and renovated environment equipped with high-end fixtures and appliances, surround-sound and flat screen TV. The flexible layout has additional guest and storage areas and an ingeniously designed home office. Exposed architectural columns and beams harken back to the building's manufacturing history.
Policies
Co-purchase allowed
Sublets allowed
Home features
No info on home features
Building amenities
Services and facilities
Elevator
Laundry in building
Live-in super
Wellness and recreation
No info on wellness and recreation
Shared outdoor space
Roof deck
About the building
Waverly Mews
23 Waverly Place, New York, NY 10003
120 units
6 stories
1891 built
For sale
1 available units for saleFor rent
0 available units for rentDocuments and permits
View documents and permitsProperty history
- Price Change: No changes
- Days on market: 20 daysThis is the number of days the listing has been on StreetEasy.
| Date | Price | Event |
|---|---|---|
4/19/2016 | $760,000 | Sold by Corcoran |
4/19/2016 | $775,000 | No longer available |
2/29/2016 | $775,000 | In contract |
2/9/2016 | $775,000 | Listed by Corcoran |
Past listing photos
Sign in to take a closer look at how this home compares to similar homes.
Explore Greenwich Village
Transit
| Location | Distance |
|---|---|
RWat 8th St–NYU | under 500 feet |
6at Astor Place | 0.16 miles |
BDFM6at Bleecker St | 0.3 miles |
ABCDEFMat West 4th St | 0.33 miles |
LNQRW456at 14th St–Union Square | 0.35 miles |
About Greenwich Village
Rental prices shown are base rent before any fees. Visit listings for cost and fees breakdown.
SalesMedian asking price
1 bed
$1.4M
RentalsMedian asking base rent
1 bed
$5,750
Greenwich Village perfectly combines a bit of the East Village's glorified grunge with a bit of the West Village's tony charm. The birthplace of the beatnik movement and home to NYU, the neighborhood offers something for all its eclectic residents. You'll find new restaurants, indie movie theaters and comedy clubs around the corner from quiet blocks full of big brownstones and well-kept window boxes. Whether it's a 24-hour falafel joint, a dark downstairs bar, or upscale furniture shops, the neighborhood appeals to anyone who relishes the culture, history and activity of the city.
Learn more about Greenwich Village















































































































