$8,000
for rent
Base rent only. For total monthly price and additional fees, see .
No longer available 4/28/2012
- ft²
6 rooms
4 beds
1.5 baths
Commercial building
- Turtle Bay
Under NYC law, you can't be charged a broker fee if you didn't hire a broker.
Listed by
Licensed Associate Real Estate Broker
Douglas Elliman
This home has been saved by 4 users.
Listing by Douglas Elliman, Limited Liability Broker, 575 Madison Avenue -, New York, NY 10022 | Brokerage Listing ID: 1442219
Unavailable
No longer available on 4/28/2012
Days on market
54 days
Last price change
No changes
About
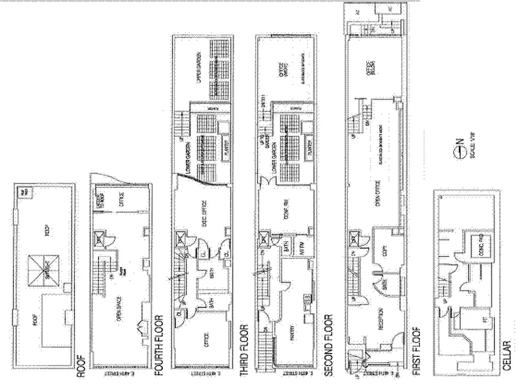
Three floors available in this Modern and Designed residence and office by the Swiss born architect William Lescaze, in the guide to New York City Landmarks, as having "a complex, rationally designed street front with precisely balanced solids and voids." The present owner of this modernist landmark building has completed a program of renovation and repair to the entire structure.
Policies
Sorry, policy info isn’t available right now. Check back later.
Home features
Fireplace
Building amenities
No info on building amenities
About the building
WILLIAM LESCAZE HOUSE AND OFFICE
211 East 48th Street, New York, NY 10017
- units
4 stories
1920 built
Property history
Prices shown are base rent only. For total monthly price and additional fees, see .
| Date | Base rent | Event |
|---|---|---|
4/28/2012 | $8,000 | No longer available |
3/5/2012 | $8,000 | Listed by Douglas Elliman |
3/6/2012 | $12,300 | |
2/9/2012 | $12,300 |
Sign in to take a closer look at how this home compares to similar homes.
Explore Turtle Bay
Transit
| Location | Distance |
|---|---|
EM6at 51st St | 0.18 miles |
EM6at Lexington Av–53rd St | 0.22 miles |
LIRRat Grand Central | 0.25 miles |
S4567at Grand Central–42nd St | 0.3 miles |
EMat 5th Av–53rd St | 0.39 miles |
Similar homes
Prices shown are base rent only and don't include any fees. Visit each listing to see a complete cost breakdown.
Similar Homes looks at ad spend and other factors like location, price, and number of beds and baths.





























































































































