$1,800,000
For Sale
No longer available 1/29/2013
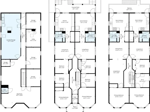
5,225 ft²
$344 per ft²
12 rooms
10 beds
10 baths
Rental unit
- Hamilton Heights
Resale
Seller's agent
Inna Sobel
Licensed Real Estate Broker
Atelier Properties
This home has been saved by 5 users.
Listing by Atelier Properties, Limited Liability Broker, 3 Academy Street, Stamford, NY 12167
Common charges
Not applicable
Estimated payment
$10,240/mo
Legal disclaimerAll calculations are estimates provided by StreetEasy for informational purposes only. Actual amounts or financing terms may vary. Please contact your mortgage provider for specifics.Taxes
No info
Tax abatement
No info
About
Seller’s agent
description
This historic turn-key property, located near the entrance to the A & D Express Trains. The former home of Ralph Ellison, author of the “Invisible Man”, and where this highly influential book was written. The building was completely gut renovated in 2008 and all the units have been beautifully remodeled. There is a new boiler, a new water heater, and a new roof (main and extension).
Policies
Sorry, policy info isn’t available right now. Check back later.
Home features
No info on home features
Building amenities
No info on building amenities
About the building
749 Saint Nicholas Avenue
749 Saint Nicholas Avenue, New York, NY 10031
9 units
4 stories
1926 built
For sale
0 available units for saleFor rent
0 available units for rentDocuments and permits
View documents and permitsProperty history
- Price Change: ↓ $100,000 (-5.3%) on 9/22/12
- Days on market: 250 daysThis is the number of days the listing has been on StreetEasy.
| Date | Price | Event |
|---|---|---|
1/29/2013 | $1,800,000 | No longer available |
9/22/2012 | $1,800,000 | Price decreased by 5% |
5/24/2012 | $1,900,000 | Listed by Atelier Properties |
Sign in to take a closer look at how this home compares to similar homes.
Explore Hamilton Heights
Transit
| Location | Distance |
|---|---|
ABCDat 145th St | under 500 feet |
1at 145th St | 0.33 miles |
Cat 155th St | 0.36 miles |
3at Harlem–148th St | 0.38 miles |
BDat 155th St | 0.49 miles |






































































































































































































































































