$4,600
For Rent
Base rent only. For total monthly price and additional fees, see .
Rented 6/5/2024
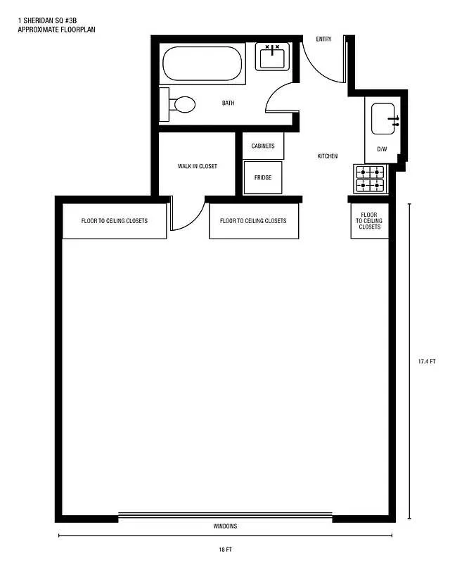
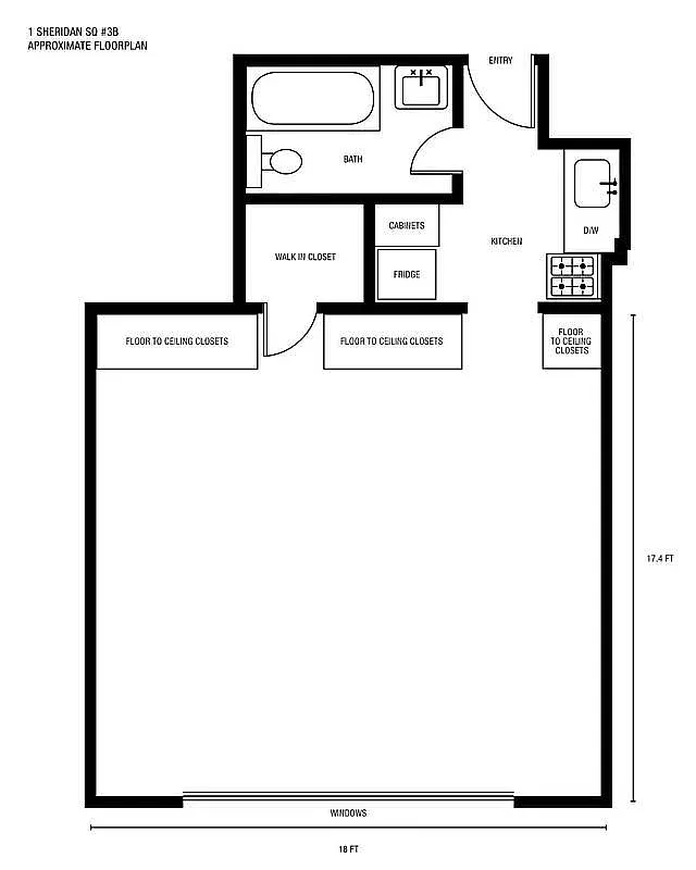
- ft²
1 room
Studio
1 bath
Condo
- West Village
Under NYC law, you can't be charged a broker fee if you didn't hire a broker.
Listed By
This home has been saved by 11 users.
Listing by Douglas Elliman, Limited Liability Broker, 575 Madison Avenue -, New York, NY 10022 | Brokerage Listing ID: 23010478
Unavailable
Rented on 6/5/2024
Days on market
8 days
Last price change
No changes
About
Loft-like space with 11’ barrel-vaulted ceilings throughout in a prewar condominium on a quiet, tree-lined street in the heart of the West Village.
In an Elevator building, this large, unique and sun-filled studio apartment boasts three oversized windows and has been tastefully renovated. Newly renovated original wooden floors and pristine bathroom.
Policies
Pets allowed
Home features
Dishwasher
Hardwood floors
View
Garden, Skyline
Building amenities
Services and facilities
Laundry in building
Live-in super
Wellness and recreation
No info on wellness and recreation
Shared outdoor space
No info on shared outdoor space
About the building
1 Sheridan Square
1 Sheridan Square, New York, NY 10014
45 units
8 stories
1920 built
Property history
Prices shown are base rent only. For total monthly price and additional fees, see .
| Date | Base rent | Event |
|---|---|---|
6/5/2024 | $4,600 | Rented by Douglas Elliman |
5/23/2024 | $4,600 | In contract |
5/15/2024 | $4,600 | Listed by Douglas Elliman |
3/1/2023 | $3,950 | |
2/17/2023 | $3,950 |
Past listing photos
Sign in to take a closer look at how this home compares to similar homes.
Explore West Village
Transit
| Location | Distance |
|---|---|
1at Christopher St–Sheridan Sq | under 500 feet |
ABCDEFMat West 4th St | under 500 feet |
PATHat 9th Street Station | 0.18 miles |
PATHat Christopher Street Station | 0.27 miles |
FLM123at 14th St | 0.31 miles |
About West Village
Rental prices shown are base rent before any fees. Visit listings for cost and fees breakdown.
SalesMedian asking price
Studio
$622K
RentalsMedian asking base rent
Studio
$4,200
Picture a romantic comedy set in New York City: The heroine invariably lives in a cozy walk-up on a cobblestone street in a neighborhood with cute boutiques and trendy cafes on every corner. This movie is set in the West Village. In reality, the West Village is just as picturesque: The neighborhood is tucked between Greenwich Village and the Hudson River and is one of the quietest and most sophisticated pockets of Downtown Manhattan. Primarily residential, with a distinct lack of office buildings, the leafy, off-the-grid streets are peaceful during the day but get livelier at night. That's when well-heeled residents, fashionistas, and literati can all be found mingling over oysters at the area's many low-lit cocktail bars.
Learn more about West VillageSimilar homes
Prices shown are base rent only and don't include any fees. Visit each listing to see a complete cost breakdown.
Similar Homes looks at ad spend and other factors like location, price, and number of beds and baths.






































































































