$2,677
For Rent
Base rent only. For total monthly price and additional fees, see .
No longer available 12/3/2025
- ft²
1 room
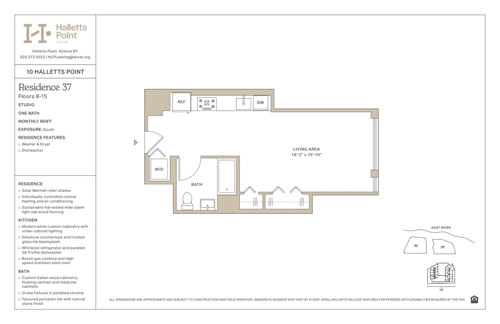
Studio
1 bath
Rental unit
- Astoria
Under NYC law, you can't be charged a broker fee if you didn't hire a broker.
Listed By
The Durst Organization
This home has been saved by 67 users.
Listing by The Durst Organization, Corporate Broker | Brokerage Listing ID: 2856317
Unavailable
No longer available on 12/3/2025
Days on market
19 days
Last price change
No changes
About
This is a lease break situation. Rent - $2,677.17 on 12 months lease.
Set along Astoria's picturesque waterfront, Halletts Point intricately intertwines modern residential towers, vibrant green spaces, endless views, abundant amenities, and the warmth of the Astoria neighborhood.
Luxuriate in elevated living with breathtaking views, generous layouts, finely crafted finishes, thoughtful details, and sustainable material choices.
Policies
Guarantors accepted
Pets allowed
Smoke-free
Home features
Central air
Dishwasher
Private outdoor space
Garden, Terrace
Washer/dryer
Building amenities
Services and facilities
Bike room
Concierge
Doorman
Elevator
Laundry in building
Live-in super
Package room
Parking
Garage, Valet
Storage space
Locker/cage
Wheelchair access
Wellness and recreation
Children's playroom
Gym
Media room
Swimming pool
Shared outdoor space
Deck
Garden
Roof deck
About the building
10 Halletts Point
10 Halletts Point, Astoria, NY 11102
Complex:
Halletts Point405 units
22 stories
2018 built
Property history
Prices shown are base rent only. For total monthly price and additional fees, see .
| Date | Base rent | Event |
|---|---|---|
12/3/2025 | $2,677 | No longer available |
11/24/2025 | $2,677 | Listed by The Durst Organization |
11/14/2025 | $2,677 | No longer available |
11/5/2021 | $2,450 | |
10/22/2021 | $2,450 |
Sign in to take a closer look at how this home compares to similar homes.
Explore Astoria
Transit
| Location | Distance |
|---|---|
Ferryat Astoria Ferry Landing | 0.3 miles |
NWat 30th Av | 0.97 miles |
NWat Astoria Blvd | 1 mile |
NWat Broadway | 1.11 miles |
NWat AstoriaâDitmars Blvd | 1.2 miles |
About Astoria
Rental prices shown are base rent before any fees. Visit listings for cost and fees breakdown.
SalesMedian asking price
Studio
$506.01K
RentalsMedian asking base rent
Studio
$2,475
Home to some 160,000 residents, Astoria is a bustling neighborhood long known for its great ethnic food, busy commercial thoroughfares and charming single-family homes. Astoria's quick commute into Midtown Manhattan (15 minutes on the N, R, W, or M) and reasonable home prices, however, have recently begun to attract newcomers. New developments are now cropping up and changing the landscape, too. Now, the neighborhood's historic single-family homes and postwar co-op buildings are interspersed with condominiums and upscale rentals.
Learn more about AstoriaSimilar homes
Prices shown are base rent only and don't include any fees. Visit each listing to see a complete cost breakdown.
Similar Homes looks at ad spend and other factors like location, price, and number of beds and baths.

































































































