$988,000
For Sale
1,446 ft²
$683 per ft²
11 rooms
5 beds
3 baths
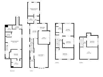
Two-family home
- South Richmond Hill
Resale
This home has been saved by 1 user.
Listing by Voro, LLC, Limited Liability Broker, 1129 Northern Boulevard, Manhasset, NY 11030
Common charges
Not applicable
Estimated payment
$5,393/mo
Legal disclaimerAll calculations are estimates provided by StreetEasy for informational purposes only. Actual amounts or financing terms may vary. Please contact your mortgage provider for specifics.Taxes
$585/mo
Tax abatement
No info
About
Seller’s agent
description
Great opportunity to own a fully detached 2 Family Home in a convenient Queens location. This multi-family home comes with a 1 car garage and backyard nestled on a quiet residential block. Featuring a 3 bedroom unit over a 2 bedroom unit, this property offers exceptional potential for both end-users and investors alike.
Policies
Sorry, policy info isn’t available right now. Check back later.
Home features
Hardwood floors
Washer/dryer
Building amenities
Services and facilities
Parking
Garage
Wellness and recreation
No info on wellness and recreation
Shared outdoor space
No info on shared outdoor space
About the building
104-78 129th Street
104-78 129th Street, South Richmond Hill, NY 11419
2 units
2 stories
1925 built
For sale
1 available units for saleFor rent
0 available units for rentDocuments and permits
View documents and permitsProperty history
- Price Change: No changes
- Days on market: 10 daysThis is the number of days the listing has been on StreetEasy.
| Date | Price | Event |
|---|---|---|
2/18/2026 | $988,000 | Listed by Voro, LLC |
Sign in to take a closer look at how this home compares to similar homes.
Explore South Richmond Hill
Transit
| Location | Distance |
|---|---|
Aat Lefferts Blvd | 0.47 miles |
Aat 111th St–Greenwood Av | 0.82 miles |
LIRRat Jamaica | 0.93 miles |
Eat Jamaica–Van Wyck | 0.97 miles |
EJZat Sutphin Blvd–Archer Av–JFK | 1 mile |


































































































































































































