$5,850,000
For Sale
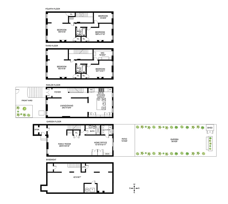
4,000 ft²
$1,462 per ft²
11 rooms
5 beds
3 baths
House
- Prospect Heights
Resale
Seller's agent
This home has been saved by 10 users.
Open House
Sun, May 3 (2:30–4 PM ET)
Listing by Brown Harris Stevens, Real Estate Principal Office, 100 Seventh Avenue, Brooklyn, NY 11215
Listing updated in the last 2 days
Common charges
Not applicable
Estimated payment
$31,023/mo
Taxes
$1,251/mo
Tax abatement
No info
About
Seller’s agent
description
BRAND NEW LISTING - 1ST OPEN HOUSE SUNDAY MAY 3RD - 2:30-4pm
Situated on a desirable landmark block, 105 St. Marks Avenue is a beautifully restored 1873 Italianate brownstone offering exceptional scale and brilliant, sun-drenched interiors across all four upper stories. Measuring 20’ x 50’ on an extra deep lot, this single-family, five-bedroom, three-bathroom residence benefits from its position on...
Policies
Sorry, policy info isn’t available right now. Check back later.
Home features
Dishwasher
Hardwood floors
Private outdoor space
Garden
View
Garden
Washer/dryer
Building amenities
No info on building amenities
About the building
105 Saint Mark's Avenue
105 Saint Mark'S Avenue, Brooklyn, NY 11217
1 unit
3 stories
1910 built
For sale
1 available units for saleFor rent
0 available units for rentDocuments and permits
View documents and permitsProperty history
- Price Change: No changes
- Days on market: 1 day
| Date | Price | Event |
|---|---|---|
4/27/2026 | $5,850,000 | Listed by Brown Harris Stevens |
Sign in to take a closer look at how this home compares to similar homes.
Explore Prospect Heights
Transit
| Location | Distance |
|---|---|
23at Bergen St | 0.12 miles |
BQat 7th Av | 0.16 miles |
LIRRat Atlantic Terminal | 0.3 miles |
23at Grand Army Plaza | 0.33 miles |
Cat Lafayette Av | 0.4 miles |
About Prospect Heights
Rental prices shown are base rent before any fees. Visit listings for cost and fees breakdown.
SalesMedian asking price
5 beds
$4.3M
RentalsMedian asking base rent
5 beds
$17,500
Prospect Heights offers a vibrant mix of old and new Brooklyn. Often referred to as a fallback for people unable to afford Park Slope, the area has recently become known for its own unique personality - as well as its rising real estate value. The commercial strips of Vanderbilt and Washington Avenues offer a mix of bodegas and inveterate neighborhood standbys next to a new spate of hipster-centric bars and restaurants. Turn down any side street, however, and you can encounter gorgeous old brownstones surrounded by quiet greenery.
Learn more about Prospect Heights























































































































































