View this home virtually
- ft²
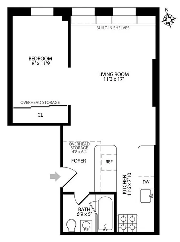
3 rooms
1 bed
1 bath
Co-op
- Upper West Side
Resale
reported sale
Sold on 10/1/2020
Not yet verified by closing records
Seller's agent
This home has been saved by 293 users.
Listing by Compass, Corporate Broker, 104 West 40th Street, New York, NY 10018
Maintenance fees
$978/mo
Estimated payment
$4,265/mo
Legal disclaimerAll calculations are estimates provided by StreetEasy for informational purposes only. Actual amounts or financing terms may vary. Please contact your mortgage provider for specifics.Taxes
Included in maintenance fees
Tax abatement
No info
About
Sellerâs agent
description
Beautiful Upper West Side one bedroom with high ceilings, exposed brick, oversized windows, hardwood floors, renovated open kitchen and renovated bath. Soaring 11' ceilings, a large loft storage space above the renovated kitchen with top of the line appliances, granite countertops, high quality cabinetry and custom built shelves. This quintessential brownstone gem is two flights up with great northern light and views.
Policies
Pets allowed
Cats and dogs allowed
Home features
Dishwasher
Hardwood floors
Building amenities
Services and facilities
Bike room
Laundry in building
Storage space
Locker/cage
Wellness and recreation
No info on wellness and recreation
Shared outdoor space
No info on shared outdoor space
About the building
106 West 87th Street
106 West 87th Street, New York, NY 10024
10 units
4 stories
1910 built
For sale
0 available units for saleFor rent
0 available units for rentDocuments and permits
View documents and permitsProperty history
- Price Change: â $71,000 (+9.8%) on 10/1/20
- Days on market: 36 daysThis is the number of days the listing has been on StreetEasy.
| Date | Price | Event |
|---|---|---|
10/1/2020 | $650,000 | Sold by Compass |
10/1/2020 | $650,000 | Price increased by 12% |
7/28/2020 | $579,000 | In contract |
6/22/2020 | $579,000 | Listed by Compass |
12/20/2013 | $425,000 |
Past listing photos
Sign in to take a closer look at how this home compares to similar homes.
Explore Upper West Side
Transit
| Location | Distance |
|---|---|
BCat 86th St | 0.18 miles |
1at 86th St | 0.22 miles |
BCat 81st StâMuseum of Natural History | 0.34 miles |
123at 96th St | 0.4 miles |
1at 79th St | 0.45 miles |
About Upper West Side
Rental prices shown are base rent before any fees. Visit listings for cost and fees breakdown.
SalesMedian asking price
1 bed
$790K
RentalsMedian asking base rent
1 bed
$4,495
Sandwiched between two beautiful parks, the Upper West Side is one of the greenest spots in Manhattan. For that reason, it is a perennial favorite. The Upper West Side is relaxed, but never dull. There are plenty of low-key bars and restaurants to frequent along Amsterdam Avenue, and Broadway is an always-bustling commercial center. The wide, tree-lined streets still boast many mom-and-pop stores. Less posh than the Upper East Side, it is more easily accessible by public transportation, and real estate prices are just as, if not more, expensive.
Learn more about Upper West Side











































































