6,252 ft²
$3,420 per ft²
10 rooms
5 beds
5+ baths
Condo
- Tribeca
Sponsor unit
Sponsor unitA unit being sold for the first time. It’s typically owned by the building. For condos, this is often the developer. For co-ops, this is often the building’s original owner before it went co-op.
recorded sale
Sold on 6/10/2025
Verified by closing records
Last listed for $24,450,000
Seller's agents
This home has been saved by 596 users.
Listing by Douglas Elliman, Limited Liability Broker, 575 Madison Avenue, New York, NY 10022 | Brokerage Listing ID: 21625628
Common charges
$10,427/mo
Estimated payment
$145,069/mo
Legal disclaimerAll calculations are estimates provided by StreetEasy for informational purposes only. Actual amounts or financing terms may vary. Please contact your mortgage provider for specifics.Taxes
$9,397/mo
Tax abatement
No info
About
Seller’s agent
Buyer’s agent
description
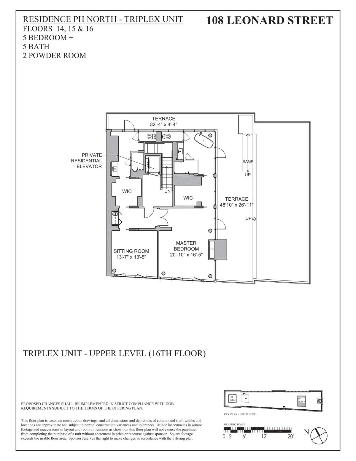
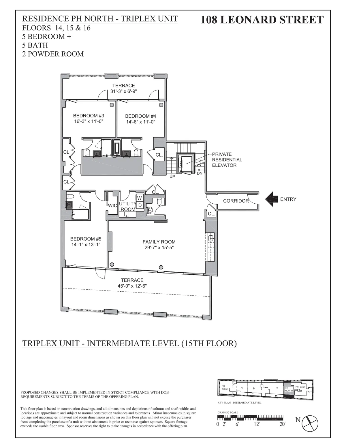
Terrace Penthouse North, known as The Crown Penthouse, is a one-of-kind residence set within The Crown Collection at 108 Leonard.
This 6,252 square foot “Townhouse in the Sky” is a 5 bedroom, 5 bath, 2 powder room triplex residence with an additional 2,173 square feet of combined outdoor space and features impressive size, volume, and character.
Policies
Pets allowed
Home features
Fireplace
Private outdoor space
Terrace
Building amenities
Services and facilities
Concierge
Doorman
Elevator
Live-in super
Parking
Garage
Storage space
Wellness and recreation
Children's playroom
Gym
Hot tub
Media room
Swimming pool
Shared outdoor space
Garden
Roof deck
About the building
108 LEONARD
108 Leonard Street, New York, NY 10013
166 units
16 stories
1899 built
For sale
13 available units for saleFor rent
1 available units for rentDocuments and permits
View documents and permitsProperty history
- Price Change: ↑ $480,000 (+1.9%) on 5/5/22
- Days on market: 1121 daysThis is the number of days the listing has been on StreetEasy.
| Date | Price | Event |
|---|---|---|
6/10/2025 | $21,384,448 | Sold by Douglas Elliman |
3/28/2025 | $24,450,000 | In contract |
5/5/2022 | $24,450,000 | Price increased by 2% |
3/3/2022 | $23,970,000 | Listed by Douglas Elliman |
Past listing photos
Sign in to take a closer look at how this home compares to similar homes.
Explore Tribeca
Transit
| Location | Distance |
|---|---|
| 0.15 miles |
| 0.17 miles |
| 0.19 miles |
| 0.25 miles |
| 0.25 miles |
About Tribeca
Rental prices shown are base rent before any fees. Visit listings for cost and fees breakdown.
SalesMedian asking price
5 beds
$14.37M
RentalsMedian asking base rent
5 beds
$75,000
Tribeca is an upscale neighborhood known for high-end real estate and well-heeled residents — a downtown haven for European cars and pedigreed dogs. It's also a truly gorgeous area that mixes glorious old cast-iron lofts, wide cobblestone streets, and dramatic new buildings. Decades ago, these lofts housed artists and squatters. But the bohemians have given way to cool-seekers with bigger bank accounts. Now, this neighborhood is among the most expensive places to live in the city. That hasn't cost the neighborhood much of its sophistication, though. Nightlife in Tribeca remains busy but refined, attracting a cosmopolitan crowd with an appreciation for the finer things in life.
Learn more about Tribeca
































































































































































































































