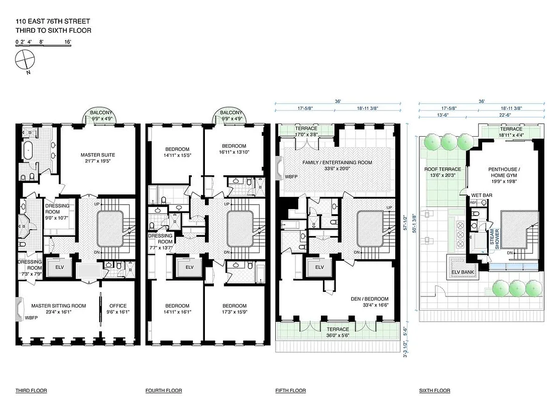
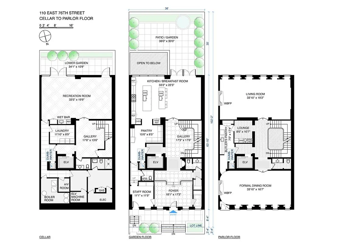
15,000 ft²
$2,683 per ft²
1 room
8 beds
10 baths
Townhouse
- Lenox Hill
recorded sale
Sold on 8/16/2018
Verified by closing records
Last listed for $51,000,000
Seller's agents
This home has been saved by 89 users.
Listing by Douglas Elliman, Limited Liability Broker, 590 Madison Avenue, New York, NY 10022 | Brokerage Listing ID: 2987825
Common charges
Not applicable
Estimated payment
$265,344/mo
Legal disclaimerAll calculations are estimates provided by StreetEasy for informational purposes only. Actual amounts or financing terms may vary. Please contact your mortgage provider for specifics.Taxes
$14,131/mo
Tax abatement
No info
About
Seller’s agent
Buyer’s agent
description
Spectacular 36' wide 15,000 s/f mansion! New construction following the vision of Robert Couturier's design, this traditionally designed home is truly without compare. A mix of modern convenience and luxury accompanies artistry and quality of craftsmanship rarely seen today. Spanning 15,000 s/f over 7 levels- all accessible by elevator- the home manages to be both impressive in its formality and relaxed in its comfort.
Policies
Sorry, policy info isn’t available right now. Check back later.
Home features
Fireplace
Private outdoor space
Terrace
Building amenities
Services and facilities
Elevator
Wellness and recreation
Gym
Shared outdoor space
Courtyard
Roof deck
About the building
110 East 76th Street
110 East 76th Street, New York, NY 10021
1 unit
6 stories
2012 built
For sale
0 available units for saleFor rent
0 available units for rentDocuments and permits
View documents and permitsProperty history
- Price Change: No changes
- Days on market: 210 daysThis is the number of days the listing has been on StreetEasy.
| Date | Price | Event |
|---|---|---|
6/29/2023 | $41,000,000 | |
8/16/2018 | $40,250,000 | Sold by Douglas Elliman |
8/24/2018 | $51,000,000 | No longer available |
6/20/2018 | $51,000,000 | In contract |
6/18/2018 | $51,000,000 | In contract |
Past listing photos
Sign in to take a closer look at how this home compares to similar homes.
Explore Lenox Hill
Transit
| Location | Distance |
|---|---|
6at 77th St | under 500 feet |
Qat 72nd St | 0.34 miles |
6at 68th St–Hunter College | 0.39 miles |
Qat 86th St | 0.49 miles |
456at 86th St | 0.52 miles |










































































































































































































