$11,600
For Rent
Base rent only. For total monthly price and additional fees, see .
No longer available 6/27/2009
- ft²
7 rooms
3 beds
2.5 baths
Two-family home
- Upper West Side
Under NYC law, you can't be charged a broker fee if you didn't hire a broker.
Listed By
This home has been saved by 3 users.
Listing by Douglas Elliman, Limited Liability Broker, 1995 Broadway, New York, NY 10023 | MLS #: 118207
Unavailable
No longer available on 6/27/2009
Days on market
134 days
Last price change
No changes
About
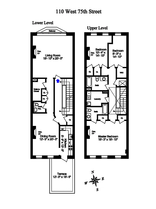
ELEGANT RESIDENCE! This fabulous duplex home is in an impeccably restored Turn-of -the-Century Townhouse. The elegant foyer and staircase are dripping with original detail. First level: Grand living room with three large windows and a stunning deco fireplace. Formal dining room with deco fireplace. Kitchen with granite counter top and new appliances. South facing terrace of 300sf off the kitchen.
Policies
Sorry, policy info isn’t available right now. Check back later.
Home features
No info on home features
Building amenities
No info on building amenities
About the building
110 West 75th Street
110 West 75th Street, New York, NY 10023
2 units
4 stories
1892 built
For rent
0 available units for rentProperty history
Prices shown are base rent only. For total monthly price and additional fees, see .
| Date | Base rent | Event |
|---|---|---|
6/27/2009 | $11,600 | No longer available |
6/25/2009 | $11,600 | In contract |
2/11/2009 | $11,600 | Listed by Douglas Elliman |
2/20/2008 | $11,600 | |
2/20/2008 | $11,600 |
Sign in to take a closer look at how this home compares to similar homes.
Explore Upper West Side
Transit
| Location | Distance |
|---|---|
123at 72nd St | 0.19 miles |
BCat 72nd St | 0.24 miles |
BCat 81st St–Museum of Natural History | 0.27 miles |
1at 79th St | 0.3 miles |
1at 66th St–Lincoln Center | 0.45 miles |
About Upper West Side
Rental prices shown are base rent before any fees. Visit listings for cost and fees breakdown.
SalesMedian asking price
3 beds
$3M
RentalsMedian asking base rent
3 beds
$8,875
Sandwiched between two beautiful parks, the Upper West Side is one of the greenest spots in Manhattan. For that reason, it is a perennial favorite. The Upper West Side is relaxed, but never dull. There are plenty of low-key bars and restaurants to frequent along Amsterdam Avenue, and Broadway is an always-bustling commercial center. The wide, tree-lined streets still boast many mom-and-pop stores. Less posh than the Upper East Side, it is more easily accessible by public transportation, and real estate prices are just as, if not more, expensive.
Learn more about Upper West SideSimilar homes
Prices shown are base rent only and don't include any fees. Visit each listing to see a complete cost breakdown.
Similar Homes looks at ad spend and other factors like location, price, and number of beds and baths.






















































































































