- ft²
4 rooms
2 beds
1 bath
Co-op
- Forest Hills
Sponsor unit
Sponsor unitA unit being sold for the first time. It’s typically owned by the building. For condos, this is often the developer. For co-ops, this is often the building’s original owner before it went co-op.
reported sale
Sold on 7/27/2023
Not yet verified by closing records
Seller's agent
This home has been saved by 51 users.
Listing by Corcoran, Limited Liability Broker, 1 Pierrepont Plz, Brooklyn, NY 11201
Maintenance fees
$1,031/mo
Estimated payment
$3,819/mo
Legal disclaimerAll calculations are estimates provided by StreetEasy for informational purposes only. Actual amounts or financing terms may vary. Please contact your mortgage provider for specifics.Taxes
Included in maintenance fees
Tax abatement
No info
About
Seller’s agent
description
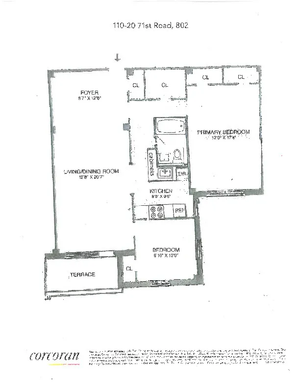
Be the first to own this stunning extra-large, true JR/4, two bedroom apartment that has been gut renovated to perfection, on the 8th floor of prestigious Barclay Plaza, a luxury co-op building located in the most desirable residential area of prime Forest Hills. This spectacular apartment is a SPONSOR UNIT which requires NO CO-OP BOARD APPROVAL
Enter the gracious foyer's boundless possibilities,...
Policies
Sorry, policy info isn’t available right now. Check back later.
Home features
Dishwasher
Hardwood floors
Private outdoor space
Terrace
View
Skyline
Building amenities
Services and facilities
Bike room
Doorman
Full-time
Elevator
Laundry in building
Live-in super
Package room
Parking
Garage
Wellness and recreation
No info on wellness and recreation
Shared outdoor space
No info on shared outdoor space
About the building
110-20 71st Road
110-20 71st Road, Forest Hills, NY 11375
188 units
10 stories
1956 built
For sale
3 available units for saleFor rent
0 available units for rentDocuments and permits
View documents and permitsProperty history
- Price Change: No changes
- Days on market: 42 daysThis is the number of days the listing has been on StreetEasy.
| Date | Price | Event |
|---|---|---|
7/27/2023 | $549,000 | Sold by Corcoran |
3/23/2023 | $549,000 | In contract |
2/9/2023 | $549,000 | Listed by Corcoran |
Past listing photos
Sign in to take a closer look at how this home compares to similar homes.
Explore Forest Hills
Transit
| Location | Distance |
|---|---|
EFMRat Forest Hills–71st Av | 0.15 miles |
EFat 75th Av | 0.22 miles |
LIRRat Forest Hills | 0.27 miles |
EFat Kew Gardens–Union Turnpike | 0.65 miles |
MRat 67th Av | 0.67 miles |
About Forest Hills
Rental prices shown are base rent before any fees. Visit listings for cost and fees breakdown.
SalesMedian asking price
2 beds
$482.5K
RentalsMedian asking base rent
2 beds
$3,200
Bisected by Queens Boulevard, Forest Hills offers two types of city living: Urban apartment complexes on one side and the other, the storied Forest Hills Gardens. Whichever side of the boulevard you live on, this suburban neighborhood is teeming with lots of public outdoor space. Another good to know, many residents own a car.
Learn more about Forest Hills





















































































































































































