View this home virtually
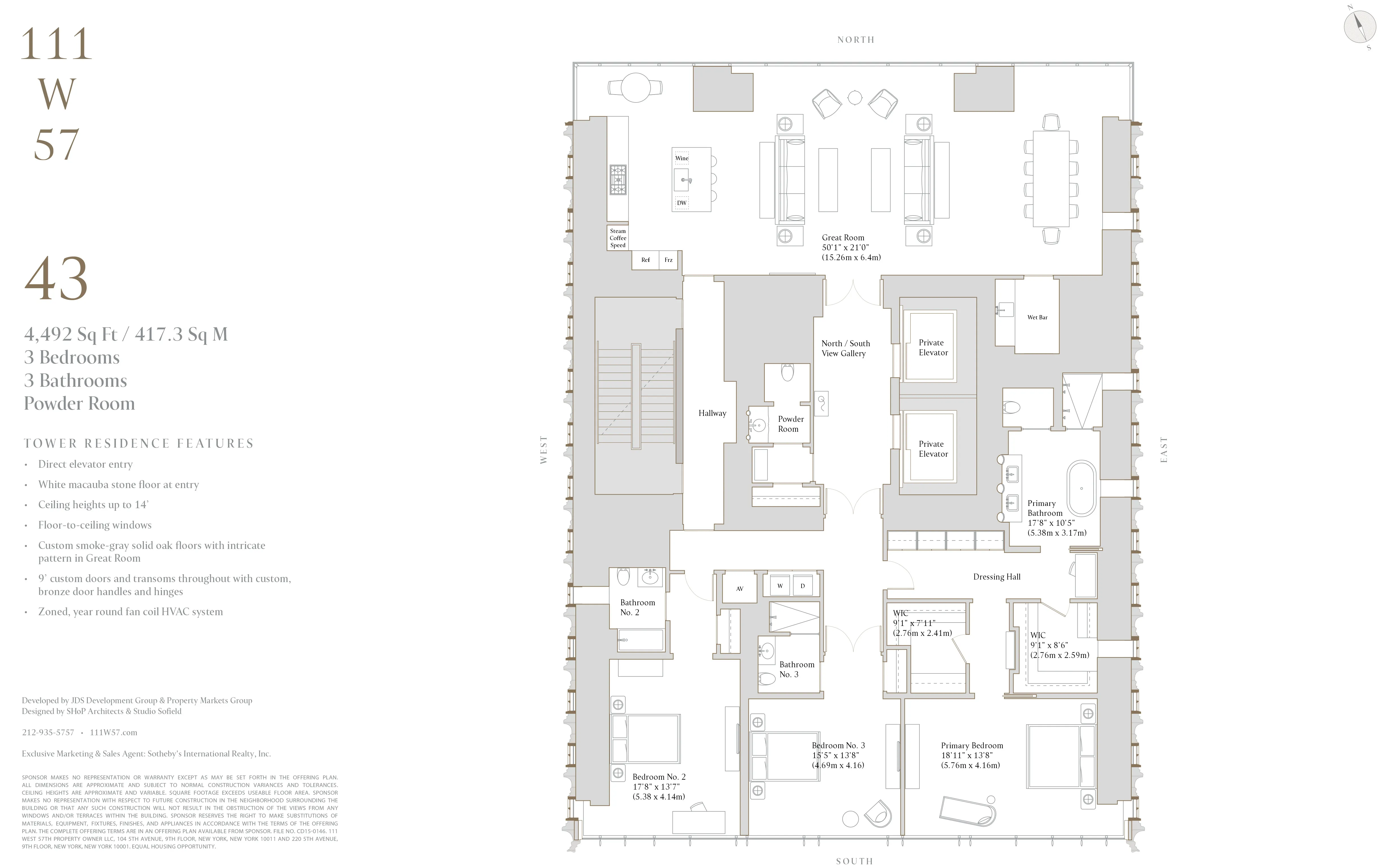
4,492 ft²
$4,730 per ft²
6 rooms
3 beds
3.5 baths
Condo
- Midtown
Sponsor unit
Sponsor unitA unit being sold for the first time. It’s typically owned by the building. For condos, this is often the developer. For co-ops, this is often the building’s original owner before it went co-op.
recorded sale
Sold on 6/27/2025
Verified by closing records
Last listed for $22,750,000
Seller's agents
This home has been saved by 52 users.
Listing by Sotheby's International Realty, Corporate Broker, 650 Madison Avenue, New York, NY 10022
Common charges
$11,148/mo
Estimated payment
$135,265/mo
Legal disclaimerAll calculations are estimates provided by StreetEasy for informational purposes only. Actual amounts or financing terms may vary. Please contact your mortgage provider for specifics.Taxes
$13,402/mo
Tax abatement
No info
About
Seller’s agent
Buyer’s agent
description
IMMEDIATE OCCUPANCY
Designed by the award-winning Studio Sofield, recognized for their impeccable craftsmanship and attention to detail, this 4,492 sqft residence offers a direct elevator Entry Gallery which leads into a sprawling full-floor, 3 Bedroom, 3.5 Bathroom Tower Residence.
The formal Entry Gallery is finished with white macauba stone floors and offers a dramatic North to South view which opens into the sumptuous Great Room.
Policies
Pets allowed
Home features
Central air
Dishwasher
Hardwood floors
View
City, Garden, Park, Skyline
Washer/dryer
Building amenities
Services and facilities
Bike room
Concierge
Doorman
Elevator
Laundry in building
Live-in super
Package room
Storage space
Cold storage, Locker/cage
Wellness and recreation
Children's playroom
Gym
Media room
Swimming pool
Shared outdoor space
Deck
About the building
111 West 57th Street
111 West 57th Street, New York, NY 10019
60 units
82 stories
2020 built
For sale
2 available units for saleFor rent
0 available units for rentDocuments and permits
View documents and permitsProperty history
- Price Change: No changes
- Days on market: 191 daysThis is the number of days the listing has been on StreetEasy.
| Date | Price | Event |
|---|---|---|
6/27/2025 | $21,250,000 | Sold by Sotheby's International Realty |
1/22/2025 | $22,750,000 | In contract |
7/15/2024 | $22,750,000 | Listed by Sotheby's International Realty |
8/1/2023 | $28,750,000 | |
5/2/2023 | $28,750,000 |
Past listing photos
Sign in to take a closer look at how this home compares to similar homes.
Explore Midtown
Transit
| Location | Distance |
|---|---|
Fat 57th St | under 500 feet |
NRWat 57th St–7th Av | 0.12 miles |
NRat 59th St | 0.17 miles |
BDEat 7th Av | 0.26 miles |
ABCD1at 59th St–Columbus Circle | 0.29 miles |
About Midtown
Rental prices shown are base rent before any fees. Visit listings for cost and fees breakdown.
SalesMedian asking price
3 beds
$6.51M
RentalsMedian asking base rent
3 beds
$11,642
If you're looking for a neighborhood with tree-lined streets and quaint coffee shops, Midtown isn't it. The neighborhood is more of a center for business than a residential community, but it puts everything close at hand for those who dwell here. Skyscrapers rise above congested streets, tourists flock to Broadway shows and Times Square, and thousands of commuters pass through Grand Central Terminal, Pennsylvania Station, and the Port Authority Bus Terminal every day.
The real estate options in Midtown can be diverse; surprisingly affordable apartments can be found alongside some of the city's most expensive properties. The headquarters of many global corporations line Sixth Avenue, while Fifth Avenue is an upscale retail destination with stores from some of the world's best-known brands.
























































































































































































































