View this home virtually
$12,500
For Rent
Base rent only. For total monthly price and additional fees, see .
Rented 5/28/2021
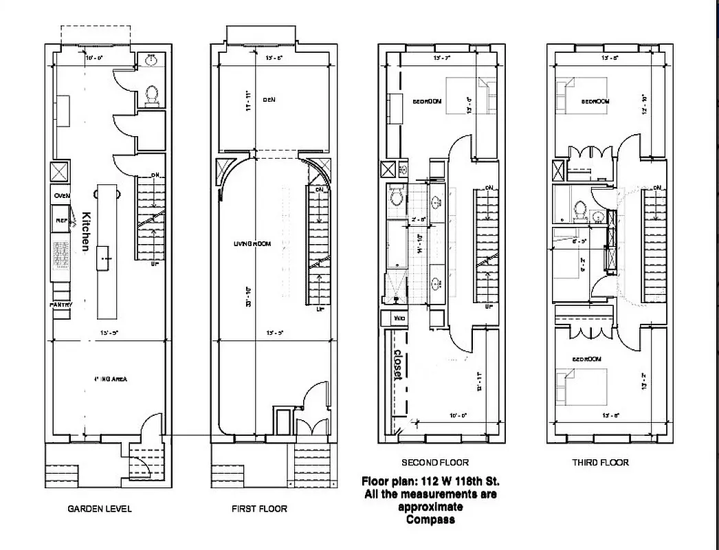
3,950 ft²
$37 per ft²
10 rooms
5 beds
2.5 baths
Two-family home
- South Harlem
Under NYC law, you can't be charged a broker fee if you didn't hire a broker.
Listed By
This home has been saved by 15 users.
Listing by Compass, Corporate Broker, 110 5th Avenue, New York, NY 10011
Unavailable
Rented on 5/28/2021
Days on market
50 days
Last price change
No changes
About
No Fee!! Welcome to the residence at 112 West 118th Street. This fully renovated approximately 4000 square feet (including the basement) single-family four-story brownstone is a rare Harlem Jewel. There was spared no expense in this unique blend of classic and contemporary styles to maximize comfort for anyone looking to enjoy an old New York feel with a modern infusion of architecture and design.
Policies
Sorry, policy info isn’t available right now. Check back later.
Home features
Hardwood floors
Private outdoor space
Garden
Washer/dryer
Building amenities
No info on building amenities
About the building
112 West 118th Street
112 West 118th Street, New York, NY 10026
2 units
3 stories
1998 built
Property history
Prices shown are base rent only. For total monthly price and additional fees, see .
| Date | Base rent | Event |
|---|---|---|
5/28/2021 | $12,500 | Rented by Compass |
5/28/2021 | $12,500 | In contract |
4/8/2021 | $12,500 | Listed by Compass |
Past listing photos
Sign in to take a closer look at how this home compares to similar homes.
Explore South Harlem
Transit
| Location | Distance |
|---|---|
23at 116th St | under 500 feet |
BCat 116th St | 0.29 miles |
23at 110th St–Central Park North | 0.33 miles |
23at 125th St | 0.36 miles |
BCat Cathedral Parkway–110th St | 0.49 miles |
Similar homes
Prices shown are base rent only and don't include any fees. Visit each listing to see a complete cost breakdown.
Similar Homes looks at ad spend and other factors like location, price, and number of beds and baths.



















































































