- ft²
5 rooms
3 beds
2.5 baths
House
- West Village
recorded sale
Sold on 6/5/2015
Verified by closing records
Last listed for $5,450,000
Seller's agents
This home has been saved by 122 users.
Listing by Leslie J. Garfield, Corporate Broker, 111 5th Avenue, New York, NY 10003 | Brokerage Listing ID: 113bed
Common charges
Not applicable
Estimated payment
$29,132/mo
Legal disclaimerAll calculations are estimates provided by StreetEasy for informational purposes only. Actual amounts or financing terms may vary. Please contact your mortgage provider for specifics.Taxes
$1,485/mo
Tax abatement
No info
About
Sellerâs agent
Buyerâs agent
description
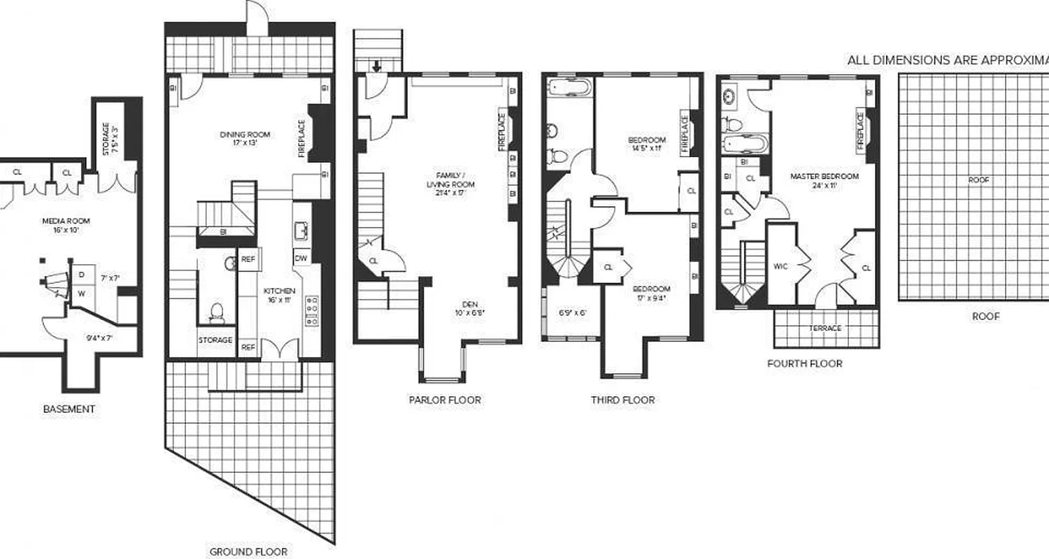
113 Bedford Street is an 18 foot wide townhouse nestled in the heart of the West Village between Grove and Christopher Streets and is one of five single-family houses in a row on the west side of the block. 113 Bedford Street has undergone numerous painstaking renovations throughout the years and now retains extremely high-end finishes and appliances by Viking, SubZero, Bosch, P.E.
Policies
Sorry, policy info isnât available right now. Check back later.
Home features
No info on home features
Building amenities
Sorry, building amenities aren't available right now. Check back later.
About the building
113 Bedford Street
113 Bedford Street, New York, NY 10014
1 unit
3 stories
1901 built
For sale
0 available units for saleFor rent
0 available units for rentDocuments and permits
View documents and permitsProperty history
- Price Change: No changes
- Days on market: 206 daysThis is the number of days the listing has been on StreetEasy.
| Date | Price | Event |
|---|---|---|
6/5/2015 | $5,300,000 | Sold by Leslie J. Garfield |
11/24/2014 | $5,450,000 | Listed by Leslie J. Garfield |
Past listing photos
Sign in to take a closer look at how this home compares to similar homes.
Explore West Village
Transit
| Location | Distance |
|---|---|
PATHat Christopher Street Station | under 500 feet |
1at Christopher StâSheridan Sq | 0.15 miles |
ABCDEFMat West 4th St | 0.26 miles |
1at Houston St | 0.29 miles |
PATHat 9th Street Station | 0.38 miles |
About West Village
Rental prices shown are base rent before any fees. Visit listings for cost and fees breakdown.
SalesMedian asking price
3 beds
$7.2M
RentalsMedian asking base rent
3 beds
$8,652
Picture a romantic comedy set in New York City: The heroine invariably lives in a cozy walk-up on a cobblestone street in a neighborhood with cute boutiques and trendy cafes on every corner. This movie is set in the West Village. In reality, the West Village is just as picturesque: The neighborhood is tucked between Greenwich Village and the Hudson River and is one of the quietest and most sophisticated pockets of Downtown Manhattan. Primarily residential, with a distinct lack of office buildings, the leafy, off-the-grid streets are peaceful during the day but get livelier at night. That's when well-heeled residents, fashionistas, and literati can all be found mingling over oysters at the area's many low-lit cocktail bars.
Learn more about West Village



































































































































